Продажа квартир и комнат

Комнаты
Например: Массальского, 4
Ванные
2-х комнатная квартира

Пехенец пос., Школьная ул. м.Проспект Ветеранов


56 м2
Общая
47 м2
Жилая
9 м2
Кухня
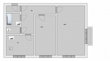
В продаже просторная теплая квартира с удобной планировкой! Комнаты изолированы, большой коридор переходит к кладовой комнате, в котором можно оборудовать гардероб, что очень удобно использовать для хранения вещей! Двухкомнатная квартира расположена на первом этаже 56 квадратных метров, есть балкон. В квартире поменян стояк холодной воды и все трубы, батареи. Во всей квартире установлены стеклопакеты. На кухне сделан евроремонт, новая встроенная кухня, натяжной потолок с светодиодной подсветкой, скрытый карниз, новая вытяжка, новый водогрей. В ванной комнате так же сделан евроремонт, установлены новые трубы, полы с подогревом, натяжной потолок, новый санузел и мебель (унитаз,шкаф,тумба, раковина,зеркало).В двух комнатах сделан косметический ремонт. В коридоре требуется ремонт. Была установлена новая входная дверь.  Установлен новый счётчик воды и по электроэнергии также газ.Напротив дома сразу детский садик и дом культуры, есть медпункт, магазины, так же есть автобус, можно доехать до ж/д станции Мшинская 15 минут,до ж/д станции Толмачёво и г.Луги. В школу детей забирает автобус привозит и отвозит ( школа на Мшинской ).Долгов по квартире нет. Один собственник.
Цена
2 300 000 ₽

2-х комнатная квартира

Саблинская ул. м.Горьковская


60 м2
Общая
32.5 м2
Жилая
11.3 м2
Кухня
334503 Санкт-Петербург, Петроградский р-н, Саблинская ул., д.13-15 М `Горьковская` - 790 м М `Чкаловская` - 1,16 км М `Петроградская` - 1,29 км Ищите квартиру в историческом центре Петербурга? Для вас есть отличное предложение - квартира в Петроградском районе, в окружении Петропавловской крепости, набережная Невы, Александровский парк и другие достопримечательности Петроградки. КВАРТИРА: семейная квартира в удобной локации с хорошим ремонтом, с окнами на солнечную сторону. Мебель и техника входят в стоимость, окна на солнечную сторону, солнце утром, комнаты правильной формы, в гостинной 2 окна,  есть окно в ванной комнате. ДОМ: построен в 1902 году в стиле эклектика по проекту архитектора Мульханова П.Н.,  лестница не парадная, но зато чистая без запахов, входная дверь с домофоном. В соседнем доме расположен многоуровневый теплый паркинг, есть свободные места для аренды. В пешей доступности лучшие школы, садики и лицеи,  главный корпус университета ИТМО, театры, разводные мосты, Александровский парк для пеших прогулок, рестораны на воде, уютные кафе и торговый променад Большого проспекта Петроградской стороны с магазинами лучших мировых брендов. Собственник: Один взрослый Продажа: Прямая. Быстрый выход на сделку. Не упускайте свой шанс стать частью истории  центра Петербурга! Звоните для записи на просмотр!
Цена
16 300 000 ₽

2-х комнатная квартира

Ивановская ул. м.Ломоносовская


58.3 м2
Общая
35.3 м2
Жилая
7.6 м2
Кухня
ДВУХКОМНАТНАЯ КВАРТИРА ПО ХОРОШЕЙ ЦЕНЕ Многоквартирный дом находится в сложившемся Невском районе г. Санкт-Петербурга, недалеко от станции метро Ломоносовская. Социальная и транспортная инфраструктура соответствует высоким требованиям современного города. В непосредственной близости находятся несколько школ и детских садов. До станции метро можно добраться пешком минут за десять, неспешным шагом. Данная квартира, под ипотеку не подходит, продается способом проведения аукциона.
Цена
10 000 000 ₽

Затрудняетесь с выбором?

Не тратьте время на поиск и анализ множества предложений недвижимости
Мы сделаем это за вас профессионально, быстро, предложив оптимальные варианты по выгодной цене!

2-х комнатная квартира

Кировск г., Пушкина ул. м.Улица Дыбенко


40.4 м2
Общая
26.9 м2
Жилая
6 м2
Кухня
Ленинградская область, Кировский район, г. Кировск ул. Пушкина Мы готовы предложить вашему вниманию прекрасную двухкомнатную квартиру, расположенную на первом этаже трёхэтажного кирпичного дома. Общая площадь квартиры составляет 40,4 кв. м., из них жилая — 26,9 кв. м. (16,2 + 10,7). Комнаты хоть и смежные, но имеют возможность быть отделены друг от друга. Кухня имеет площадь 6,0 кв. м. В кухне и комнате площадью 10,7 кв. м. выполнен качественный ремонт с использованием двухуровневых потолков. Также в квартире есть кладовка площадью 2 кв. м. Санузел совмещённый, в нём сделан ремонт, заменены трубы и установлены счётчики. В шаговой доступности находится вся необходимая инфраструктура: поликлиника, школы, детский сад, продуктовые магазины, аптеки и рынок. Возле дома есть большая игровая площадка, а также возможность припарковать свой автомобиль. Район тихий и спокойный, идеально подходит для комфортной жизни. От Санкт-Петербурга до квартиры можно добраться на автобусе. Прямое сообщение от станции метро «Дыбенко» займёт всего 40 минут. Квартира продаётся напрямую, одним взрослым собственником, который владеет ею более 20 лет. Подходят все виды расчётов. Не упустите возможность увидеть эту удивительную квартиру! Звоните, мы организуем просмотр!
Цена
4 250 000 ₽

2-х комнатная квартира

Муринская дор. м.Девяткино


59.3 м2
Общая
33 м2
Жилая
13.7 м2
Кухня
БОЛЬШАЯ КВАРТИРА ПО ХОРОШЕЙ ЦЕНЕ Многоквартирный дом находится в динамично развивающемся Красногвардейском районе города Санкт-Петербурга. Социальная и транспортная инфраструктура соответствует высоким требованиям современного города. В непосредственной близости находятся несколько школ и детских садов. До метро Девяткино можно добраться транспортом за 15 минут и пешком за 30 минут. Данная квартира, под ипотеку не подходит, продается способом проведения аукциона.
Цена
7 900 000 ₽

2-х комнатная квартира

Гранитная ул. м.Ладожская


45.9 м2
Общая
30.6 м2
Жилая
6.4 м2
Кухня
2-комнатная квартира со смежной планировкой. Просторная гостиная с балконом и спальня, кухня 6,4 кв.м Дом расположен в спокойном зеленом районе. Во дворе расположен сквер, оборудованы детские игровые зоны и парковые скамейки. Вся инфраструктура для комфортной жизни - детские сады, школы, поликлиники, торговые центры, магазины -все в шаговой доступности. Также недалеко расположены два  парка для прогулок -Малоохтинский и Заневский . Дом имеет отличное расположение: между двух станций метро Ладожская и Новочеркасская, до которых всего 10-15 минут ходьбы; возле дома остановка трамвая; рядом весь наземный транспорт, отличная транспортная доступность. До центра города - Невского проспекта на транспорте 15 минут. Объект реализуется через процедуру торгов.                                 Это значит:                                 - Конечная стоимость покупки объекта  на торгах как правило ниже рыночной стоимости  на 20-30%.                                 - Процедура торгов регламентируется федеральным законом, что делает сделку безопасной.                                 Мы всегда работаем только с одним клиентом по одному объекту - чтобы клиент получил возможность приобретения по самой выгодной цене.                                 Наша компания сопровождает сделку до получения клиентом права собственности.                                 Не упустите свою выгодную покупку!
Цена
4 800 000 ₽

2-х комнатная квартира

Петергоф г., Чебышевская ул. м.Ленинский проспект


52.4 м2
Общая
31.8 м2
Жилая
6.7 м2
Кухня
Продается уютная 2х комнатная квартира в кирпичном доме по адресу: г. Петергоф, ул.Чебышевская, д. 10,к.2. Квартира в хорошем состоянии. Комнаты изолированные.Раздельный санузел, установлены счётчики на воду , стеклопакеты.  У дома  сложившаяся инфраструктура. Несколько школ, детских садов, магазинов, аптек и кафе.
Цена
6 950 000 ₽

2-х комнатная квартира

Лесколово пос., Красноборская ул. м.Девяткино


59.8 м2
Общая
35.2 м2
Жилая
8.7 м2
Кухня
Продается просторная и уютная 2-к.кв площадью 59,8 м², в поселке с развитой инфраструктурой Лесколово. Квартира расположена в тихом месте. Площадь большой комнаты - 21,5 м², маленькой - 13,7 м². Вместительная кухня позволит собираться большой семье. Санузел раздельный. В ванной установлен бойлер, поэтому в сезон отключений не будет проблем с водой. В поселке есть все необходимое для комфортного проживания, рядом расположены: дет.сад, школа, взрослая и детская поликлиника, магазины, кафе, почта, ДК, церковь. В пешей доступности находится Ж/Д станция 39 км (Приозерское направление, электрички следуют от Финляндского вокзала), остановки общественного транспорта, откуда идут 2 маршрутки в сторону города, до станций метро Гражданский проспект и проспект Просвещения. Место подходит для семей с детьми, а так же тех, кто любит тишину и спокойствие.
Цена
5 300 000 ₽

2-х комнатная квартира

Лесколово пос., Красноборская ул. м.Девяткино


48.2 м2
Общая
30.3 м2
Жилая
9 м2
Кухня
Продается просторная и светлая 2к.кв площадью 48,2 м², в поселке с развитой инфраструктурой Лесколово. Квартира имеет просторные комнаты, с видом на разные стороны и один балкон. В помещении тепло, проблем с отоплением и водой нет. 2 года назад в доме был произведен капитальный ремонт, с заменой труб и крыши. Рядом находится дет.сад, школа, взрослая и детская амбулатории ДК, магазины и кафе. Место идеально подходит для семей с детьми и тех, кто ищет уединение и покой, вдали от городской суеты. Здесь есть все необходимое для комфортного проживания. В пешей доступности расположена Ж/Д станция 39км (Приозерское направление, электрички следуют от Финляндского вокзала), так же есть остановки общественного транспорта, откуда ходят 2 маршрутки до метро Девяткино и пр.Просвещения. На машине можно добраться до города за 35 минут. Недалеко,у станции есть лес, там растут ягоды и грибы. Используя наземный транспорте легко доехать до озер, которые расположены поблизости.
Цена
4 800 000 ₽

2-х комнатная квартира

Лесколово пос., Красноборская ул. м.Девяткино


52 м2
Общая
27.3 м2
Жилая
9.5 м2
Кухня
Продается просторная и светлая 2-к.кв. 52м² в поселке городского типа Лесколово. В квартире: длинный коридор с кладовкой, комнаты изолированные, покрытие пола - паркет, одна площадью 17,4м², вторая - 9,9м², окна выходят на разные стороны, раздельный санузел. Так же есть большая застекленная лоджия. Квартира требует ремонта. Собственник один, прямая продажа, без обременений. В поселке развитая инфраструктура, есть все необходимое для комфортного проживания. Здесь расположены: дет.сад, школа, взрослая и детская амбулатории, магазины, кафе, рынок, ДК, пункты выдачи: WB, Ozon, Яндекс Маркет. Удобное транспортное сообщение. В 10 минутах ходьбы находится Ж/Д станция 39км (Приозерское направление), электрички идут от Финляндского вокзала. Так же ходят маршрутки до метро Девяткино и пр.Просвещения. Звоните!
Цена
5 200 000 ₽

2-х комнатная квартира

Юкки дер., Тенистая ул. м.Парнас


46.7 м2
Общая
26.7 м2
Жилая
9.9 м2
Кухня
334115 Продается двухкомнатная квартира в малоэтажном ЖК `Черничная поляна` в Ленинградской обл., д.Юкки, ул. Тенистая, 11к2 Ближайшие ст. метро Пр. Просвещения, Озерки, Парнас В квартире изолированные комнаты, выполнена предчистовая отделка, стяжка пола, разводка электричества. Удобная планировка предусматривает выход на большую застекленную лоджию из двух комнат, раздельный санузел, нишу под гардеробную в прихожей. В парадной чисто, квартирная группа отделена от лестницы дверью. Всегда есть парковочные места прямо перед парадной. Жилой комплекс находится в уютном зеленом уголке Ленинградской области в непосредственной близости от Приозерского и Ленинградского шоссе в окружении величественного соснового леса. В лесу много грибов и ягод.На территории жилого комплекса 2 детские площадки, спортивная площадка, много троп для пробежек и прогулок с братьями нашими меньшими. За 20 минут пешком можно дойти до Тохколодского озера, а также до парка `Осиновая Роща` с тремя живописными озерами и вековыми соснами, эко-тропы `Юкковские камы`, двух школ Олимпийского резерва, горнолыжного курорта. До ближайших магазинов, аптеки, кафе, парикмахерской, фитнес-клуба, детских секций, церкви, почты - 1 км. До школы, сада с бассейном, поликлиники, стоматологии - 1,4 км, до Меги Парнас - 9 км. Удобный выезд на КАД - 4 км, на ЗСД - 15 км. Спокойные доброжелательные соседи, добросовестная управляющая компания, отсутствие сквозной дороги, близость к городу и тишина делают этот район очень привлекательным. Поможем с одобрением ипотеки. Звоните, договоримся о просмотре.
Цена
6 999 000 ₽

2-х комнатная квартира

Скреблово пос.


53.8 м2
Общая
29 м2
Жилая
9 м2
Кухня
Продажа квартиры в Лужском районе на берегу Большого озера в развитом поселке от Луги 10 км. Квартира двухкомнатная на втором этаже, комнаты изолированные, санузел раздельный. Квартире требуется косметический ремонт. Транспортное сообщение удобное от вокзала на автобусе без пересадок 20 минут до поселка. В поселке есть сетевые магазины, детские площадки, школа , дет сад, дом культуры. Жизнь на природе со всеми удобствами для вас ! Звоните, пишите. В любое время.
Цена
2 700 000 ₽

Закажите консультацию специалиста

Оставьте заявку
Нажимая на кнопку «Отправить заявку», Вы даете согласие на обработку своих персональных данных.
×
продажа
Что вы хотите продать?
Сколько комнат?
Тип объекта?
В каком регионе?
В каком районе Санкт-Петербурга
В каком районе Ленинградской области?

Оставьте Ваш контакт и наши специалисты свяжутся с Вами в самые кротчайшие сроки.

+7
×
новостройка
Какие районы Санкт-Петербурга Вас интересуют?
С какой целью Вы планируете приобрести квартиру?
Сколько комнат должно быть в Вашей будущей квартире?
Какой вариант отделки Вам необходим?
Когда Вы хотите заехать?
В какой бюджет хотите уложиться?

Оставьте Ваш контакт и получите подборку квартир без риска столкнуться с мошенничеством и недостроем.

+7
×
сдать
Что вы хотите сдать?
Скольки комнатная квартира?
Какой тип коммерческой недвижимости вы хотите сдать?
В каком регионе?
В каком районе Санкт-Петербурга
В каком районе Ленинградской области?

Оставьте Ваш контакт и наши специалисты свяжутся с Вами в самые кротчайшие сроки.

+7
Этот сайт использует файлы cookie для улучшения пользовательского опыта. Cookie - это небольшие текстовые файлы, которые сохраняются на вашем устройстве и помогают нам запоминать ваши предпочтения, анализировать посещаемость сайта и предоставлять более персонализированный контент. Использование файлов cookie позволяет нам сделать сайт удобнее для вас. Политика конфиденциальности
Принять Отказаться