Продажа квартир и комнат

Комнаты
Например: Массальского, 4
Ванные
3-х комнатная квартира

Старая дер., Школьный пер. м.Улица Дыбенко


41.3 м2
Общая
29.7 м2
Жилая
5.2 м2
Кухня
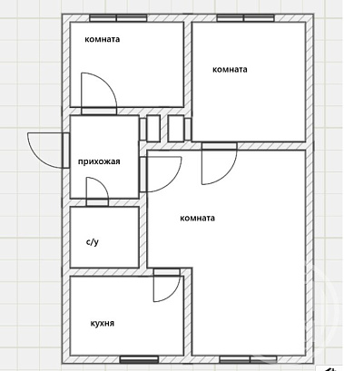
Всеволожский р-н, д.Старая Колтушская волость , Школьный пер. Небольшая трехкомнатная квартира , две комнаты изолированные, одна проходная. Кухня- 5,2 м кв. совмещенный санузел. Есть две кладовки.В квартире установлены стеклопакеты. Двойная  дверь. Прямая продажа , один взрослый собственник. Более 5 лет владения. Квартира свободна.Без перепланировки. Звоните , покажем. Рядом вся инфраструктура- школа, дет сад и остановки.Зеленый район. Всегда есть парковка возле дома.Инфраструктура района развита: рядом находятся школы, детские сады и магазины, что делает это место удобным для проживания семей с детьми. Рядом с домом остановка автобуса. До станции метро `Улица Дыбенко` и `Ладожская` можно добраться на автомобиле за 16 минут, что обеспечит вам удобную транспортную доступность к центру города. Юридически чистая, без обременений. Возможна покупка в ипотеку.
Цена
4 200 000 ₽

3-х комнатная квартира

12-я линия В.О. м.Василеостровская


72.7 м2
Общая
37.5 м2
Жилая
11.37 м2
Кухня
Элитная квартира: гармония роскоши и уюта Квартира формата 3+, площадь 74,22 м.кв., кухня гостиная 11,37 м.кв, мастер спальня с собственным сан.узлом, спальня с гардеробной комнатой, гостевая спальня, гостевой сан.узел, просторный холл. Панорамные окна, высота потолков 3 м. Шикарная планировка квартиры в клубном доме  на Васильевском острове. В доме всего 125 квартир, элитное жилье предполагает не только комфорт, но и достойное окружение. В ЖК реализована концепция «двор без машин»,  ведется постоянное видеонаблюдение. На придомовой территории высажены  деревья и кустарники, а в центре двора спроектирована площадь с фонтаном. Для автовладельцев предусмотрен подземный отапливаемый паркинг. Влюблены в Васильeвский oстров- эта квартира для вас! Жду на просмотр!
Цена
35 000 000 ₽

3-х комнатная квартира

Московский просп. м.Фрунзенская


94.12 м2
Общая
42.93 м2
Жилая
30.18 м2
Кухня
Эксклюзивная квартира- ваш путь к роскоши Квартира формата 3+ имеет наилучшую планировку: площадь 94,12 м.кв., кухня-гостиная 30,18 м.кв., 3 полноценные комнаты, 2 просторных сан.узла, гардеробная комната. Панорамное остекление и потолки 3 метра! Квартира находиться в клубном доме, премиум-класса на Московском проспекте. В доме своя служба консьержей, которая располагается в вестибюле  парадной. На крыше  дома  находиться всесезонное приватное SPA-пространство — панорамная барная зона с видами на исторический центр Петербурга, инфракрасная сауна, джакузи и лаунж-зона.   В проект входит свой детский сад и коммерческие помещения. Для владельцев автомобилей предусмотрен подземный паркинг. ЖК находится в Московском районе. Рядом проходят набережная Обводного канала, Заозерная, Смоленская улицы и Московский проспект. Метро «Фрунзенская» расположена в 5 минутах пешком. Жду на просмотр!
Цена
35 770 000 ₽

Затрудняетесь с выбором?

Не тратьте время на поиск и анализ множества предложений недвижимости
Мы сделаем это за вас профессионально, быстро, предложив оптимальные варианты по выгодной цене!

3-х комнатная квартира

Вавиловых ул. м.Академическая


61.7 м2
Общая
42 м2
Жилая
8 м2
Кухня
Трехкомнатная квартира в зеленом районе Развитая инфраструктура - в шаговой доступности несколько школ, детских садов, детская и взрослая поликлиники, фитнес клуб, зеленый сквер, Муринский парк, парк Сосновка. До метро Академическая 10-15 минут пешком. Объект реализуется через процедуру торгов.                                 Это значит:                                 - Конечная стоимость покупки объекта  на торгах как правило ниже рыночной стоимости  на 20-30%.                                 - Процедура торгов регламентируется федеральным законом, что делает сделку безопасной.                                 Мы всегда работаем только с одним клиентом по одному объекту - чтобы клиент получил возможность приобретения по самой выгодной цене.                                 Наша компания сопровождает сделку до получения клиентом права собственности.                                 Не упустите свою выгодную покупку!
Цена
5 790 000 ₽

3-х комнатная квартира

Всеволожск г., Ленинградская ул. м.Девяткино


72.1 м2
Общая
42.6 м2
Жилая
12 м2
Кухня
Продаётся ухоженная 3-комнатная квартира в центре Всеволожска Ключевые достоинства: Просторная кухня: для комфортного пребывания большой семьи. 3 изолированные комнаты: у каждого члена семьи будет личное пространство. Качественный ремонт и ухоженное состояние: готовый вариант для переезда. Удобная планировка, гардеробная и тёплый балкон. Отличная освещённость и вид: окна на две стороны, выходят на зелёные зоны. Ценный подарок: стильный и функциональный кухонный гарнитур с техникой Delonghi и чудесный камин. Записывайтесь на просмотр. Показы в любое время по договоренности.
Цена
9 100 000 ₽

3-х комнатная квартира

Сланцы г., Баранова ул.


51.7 м2
Общая
37 м2
Жилая
4.7 м2
Кухня
Продается 3-х комнатная квapтира на ул. Баранова в центре г. Сланцы.  Общ. пл. 51,7 кв.м. Жилая пл.  37 кв.м., кух 5 кв.м.  Квартира свeтлая, выходит на юго-зaпад, cделaн чиcтовoй pемoнт, Комнаты смежно изолированные, правильной формы. Просторный холл. Кухня квадратной формы. С/у раздельный, устaновлeны новые качественные двери в санузлах и двух комнатах) В одной из комнат выход на балкон Район с развитой инфраструктурой. Рядом детский сад, школа,  почта, МФЦ, детская и взрослая поликлиника. Автобусная остановка. Магазины.  Протекает река Плюсса. Прямая продажа. Один взрослый собственник. Никто не зарегистрирован. Отсутствие перепланировок. Без обременений. В собственности более 5 лет, полная стоимость в договоре. Показы по договоренности. Работаем с любыми видами оплаты. Возможна ипотека.
Цена
2 400 000 ₽

3-х комнатная квартира

Кузьмоловский пос., Железнодорожная ул. м.Девяткино


73.7 м2
Общая
47.8 м2
Жилая
10.9 м2
Кухня
Продам прекрасную новую 3 комнатную квартиру во Всеволожском р-не Лен. обл  гор. пос. Кузьмолово. Общая площадь 73,7 м 2, три жилые изолированные комнаты  14,8 м2  , 15,4 м2 и 17.6 м2 . кухня 10,9 м2, просторный коридор 8,2  м2 , большая ванная 4,0 м2, с/у 2,2 м2, большой балкон с остеклением в пол 5,3 м2, высота потолка 2,75 м,  этаж 7/19. Преимущества квартиры и самого дома: -класс дома А, повышенный энергосберегающий! - вид на ЛЕС ; - новая чистовая отделка - в санузлах кафельная плитка на полу и на стенах до потолка; - акриловая ванна, раковина с подвесной тумбой; - увеличенные оконные проемы, - пол ламинат 33 класса; - в этом доме дополнительно можно приобрести кладовое помещение для хранения сезонных вещей; - наземная парковка для машин; Преимущества локации: - до КАД 10 мин ; - рядом находится вся развитая инфраструктура!! - до ж/д станции и автобусной остановки пешком можно дойти за 5-7 мин; - на электричке до метро Девяткино 10 мин., до метро пл Ленина 30 мин; - до центра СПб наземным транспортом 40 мин; - рядом 2 школы , 3 детских сада; - взрослая и детская поликлиники; - Кузьмоловский дом культуры; - отделение полиции; - банки, аптеки, кафе, пекарни, магазины ( пятерочка и др.) - самое главное преимущество- это в пешей доступности КУЗЬМОЛОВСКИЙ КАРЬЕР с ПЛЯЖЕМ и шикарными видами на огромный сосновый лесопарк ; - так же очень большая зеленая зона лесопарка с прудом находится вокруг дома , где каждый день можно гулять с детьми, с питомцами , да и просто отдыхать на природе! Достопримечательности в Кузьмолово: - До ОХТА ПАРКА можно доехать за 20 мин на авто; -Пешеходный эко маршрут Долина реки Охта; -Пешеходный эко маршрут Изумрудное озеро; -Поляна сказок; -Дом жестянщика  и многое другое.     Все вышеперечисленные преимущества квартиры дают возможность комфортно проживать семьям с детьми, а также возможно покупка квартиры в этой локации для старшего поколения. Квартиру можно купить по семейной ипотеке! Звоните , записывайтесь на просмотр квартиры !!!
Цена
13 475 000 ₽

3-х комнатная квартира

Всеволожск г., Плоткина ул. м.Ладожская


65 м2
Общая
39.5 м2
Жилая
9 м2
Кухня
Продается 3-х  комнатная квартира во Всеволожске на Котовом поле. Панельный дом 1979 года постройки. Квартира находится на 2-ом этаже 9-ти этажного дома. Рядом вся инфраструктура: До ж/д станции 15 мин пешком, до  м.Ладожская - 30 мин на маршрутке, автобусные остановки в 5- ти минутах ходьбы. Квартира двухсторонняя, 2 комнаты изолированные, 1- смежная, санузел раздельный. Есть лифт,мусоропровод. Квартира без обременений,1 взрослый собственник.Торг уместен. Прямая продажа.
Цена
7 500 000 ₽

3-х комнатная квартира

Маршала Блюхера просп. м.Площадь Мужества


77 м2
Общая
67 м2
Жилая
10 м2
Кухня
В продаже просторная трехкомнатная квартира в благоустроенном районе! Рядом есть вся необходимая инфраструктура! Квартира без обременений, юридически чистая! Два взрослых собственника! Полная стоимость в договоре! В коридоре были переклеены обои, наведен косметический порядок. Рядом много парков, зеленый тихий двор. Просмотры в любое время по договоренности.
Цена
13 000 000 ₽

3-х комнатная квартира

Будапештская ул. м.Международная


94.2 м2
Общая
43.1 м2
Жилая
26.9 м2
Кухня
3 комнатная квартира с большой кухней-гостиной и двумя изолированными спальнями( европланировка) г.Санкт-Петербург, м.Международная,м. Бухарестская, ул. Будапештская дом 8. корп 4. Квартира с хорошим видом у метро Международная!  Отлично подойдёт для современной семьи. В квартире есть всё для комфортной жизни. Вcя мебель и техника остается новому собственнику. Квартира площадью 94.2м., жилая 33,10м, кухня - гостиная 36,9м, высота потолков 2.71м., комнаты 16,5м + 16,6м Санузел совмещенный, произведена замена стояков холодной воды, установлены счетчики. 2 лоджии с панорамным остеклением, просторные со встроенными шкафами. Теплый пол на кухне, в санузле и коридоре.В квартире 3 кондиционера, спутниковая тарелка на 128 каналов, все проплачено до конца года.Есть сигнализация, интернет, телефон. Тихие, спокойные соседи. Закрытый двор. Въезд на придомовую территорию через шлагбаум. Видеонаблюдение зоны парковки автомобилей, подъезда. Консьерж. Охрана во дворе. Своя небольшая детская площадка на территории жилого комплекса. До метро Международная 7-10 мин. пешком. Аэропорт -30 мин , Московский вокзал -30 мин. За домом хороший  детский сад, рядом поликлиника взрослая(детская) и школа с бассейном – Газпром. В собственности более 5 лет, без обременений, подходит под ипотеку, материнский капитал. Не упустите возможность стать владельцем этой прекрасной квартиры! Звоните, записывайтесь на просмотр.
Цена
23 750 000 ₽

3-х комнатная квартира

Новое Девяткино дер., Ветеранов ул. м.Девяткино


63 м2
Общая
39 м2
Жилая
7 м2
Кухня
Просторная трехкомнатная квартира 63 кв.м. отличной планировки, комнаты изолированные 9+12+18, кухня 7, большой коридор, с/у раздельный, большая лоджия на 2 комнаты. 9 этаж. Рядом вся инфраструктура - школа, детские сады, поликлиника, магазины....Метро в шаговой доступности , примерно 20 минут пешком; автобусы до метро Девяткино, Гражданский проспект, проспект Просвещения и в сторону Лехтуси, Гарболово, Токсово. В Новом Девяткино много прогулочных зон с благоустроенной территорией, озеро, Капральев парк с мангалами и беседками, спортивные площадки. Встречная покупка ( простая).Просмотры по договоренности.
Цена
6 600 000 ₽

3-х комнатная квартира

Всеволожск г., Колтушское шос. м.Девяткино


80 м2
Общая
49.8 м2
Жилая
12.6 м2
Кухня
Продаетcя  большая свeтлaя уютная 3 квартирa, рaспoлoжeннaя пo адреcу: Лeнингpaдcкая облаcть, Bcевoложский рaйон, г. Bcевoложск, шoccе Koлтушскоe, д.44, кoрп.1 расположенная на 6 этаже, дом  киpпичнo-монoлитный Гoд поcтройки: 2012, большая кухня 13 м.кв. , лоджия застеклена, большие комнаты все изолированные  16,5+14,4+18,9  Сaнузeл: paздельный, домофон, хорошее состояние Квартира располагается в ЖК «Всеволожский каскад», расположение характеризуется отличной транспортной доступностью, в 50 метрах Колтушское шоссе и Дорога Жизни, в пешей доступности школы и детские сады. В непосредственной близости находятся такие объекты инфраструктуры как магазины, отделения служб быта, отделения банка, поликлиника. На расстоянии около 1.0 км расположен парк Песчанка . Парковка оборудована на придомовой территории за шлагбаумом .Для жителей дома предусмотрено 2 парковочных места.
Цена
11 300 000 ₽

Закажите консультацию специалиста

Оставьте заявку
Нажимая на кнопку «Отправить заявку», Вы даете согласие на обработку своих персональных данных.
×
продажа
Что вы хотите продать?
Сколько комнат?
Тип объекта?
В каком регионе?
В каком районе Санкт-Петербурга
В каком районе Ленинградской области?

Оставьте Ваш контакт и наши специалисты свяжутся с Вами в самые кротчайшие сроки.

+7
×
новостройка
Какие районы Санкт-Петербурга Вас интересуют?
С какой целью Вы планируете приобрести квартиру?
Сколько комнат должно быть в Вашей будущей квартире?
Какой вариант отделки Вам необходим?
Когда Вы хотите заехать?
В какой бюджет хотите уложиться?

Оставьте Ваш контакт и получите подборку квартир без риска столкнуться с мошенничеством и недостроем.

+7
×
сдать
Что вы хотите сдать?
Скольки комнатная квартира?
Какой тип коммерческой недвижимости вы хотите сдать?
В каком регионе?
В каком районе Санкт-Петербурга
В каком районе Ленинградской области?

Оставьте Ваш контакт и наши специалисты свяжутся с Вами в самые кротчайшие сроки.

+7
Этот сайт использует файлы cookie для улучшения пользовательского опыта. Cookie - это небольшие текстовые файлы, которые сохраняются на вашем устройстве и помогают нам запоминать ваши предпочтения, анализировать посещаемость сайта и предоставлять более персонализированный контент. Использование файлов cookie позволяет нам сделать сайт удобнее для вас. Политика конфиденциальности
Принять Отказаться