Продажа квартир и комнат

Комнаты
Например: Массальского, 4
Ванные
3-х комнатная квартира

Суздальское шос. м.Озерки


88.79 м2
Общая
49.87 м2
Жилая
13.99 м2
Кухня
Санкт- Петербург, Коломяги, ш. Суздальское, 18 к4. Продаётся просторная трехкомнатная   квартира с большой кухней  в новом доме (корпус: 7.1.1.), общей площадью 88,79 кв.м., на 20 этаже., что обеспечивает красивые виды на город и близлежащие парковые зоны. Квартира без отделки, что позволит Вам воплотить в жизнь свои самые смелые идеи об устройстве своего пространства. Очень удобная планировка квартиры: три просторные комнаты правильной формы( 16,73 кв.м.,  11,90 кв.м. и 21,24кв.м.,) , большая кухня  площадью 13,99 кв м. будет прекрасным местом сбора вашей  семьи или встречи гостей.  Правильная  планировка квартиры  поможет создать уютную и функциональную обстановку ,чтобы каждый момент проведенный в этой квартире был наполнен комфортом и радостью. Жилой комплекс находится в Приморском районе Санкт-Петербурга, в самом сердце зеленого массива на 140 гектаров. Рядом с комплексом расположены Суздальские озера, Новоорловский заказник и Шуваловский парк, а в 10 минутах езды Юнтоловский заповедник. Здания проекта органично вписаны в холмистый ландшафт с вековыми елями, где водятся зайцы, ежи, бобры и птицы. Дома окружены лесным массивом, а внутри квартала находятся широкие европейские пешеходные улицы и променады, торговые зоны, кафе, спортивные клубы, площадки для спорта и детских игр. Делайте свой выбор! Готова ответить на Ваши вопросы.
Цена
16 348 000 ₽

3-х комнатная квартира

Токсово пос., Гагарина ул. м.Девяткино


53.4 м2
Общая
35.4 м2
Жилая
6.3 м2
Кухня
Предлагаем к продаже уютную семейную квартиру, в природном парке, расположенном в черте посёлка Токсово, рядом с нетронутым массивом естественного хвойного леса. Квартира очень тёплая,все окна выходят на юго-запад, из них виден вековой лес, в прихожей - электрические полы, везде качественный ремонт с современными материалами. Все комнаты-изолированные, много мест для хранения,одна из стен в прихожей-полностью зеркальная, это оптимизирует пространство.и красиво смотрится. Санузел с душевой кабиной и окном.Всё устроено для комфорта большой семьи.Шкафы купе,кухонный гарнитур,холодильник -остаются. На придомовой территории -два парковочных места и под окном - сад-огород. До озера Кавголовское 5 минут на велосипеде, до Изумрудного и того меньше.При этом-место тихое и обособленное,не слышно трассу и нет скопления авто и толп отдыхающих. Торг возможен.Подходит под ипотеку, мат.капитал,субсидии.
Цена
6 500 000 ₽

3-х комнатная квартира

Дачный просп. м.Проспект Ветеранов


56.5 м2
Общая
39.1 м2
Жилая
6.5 м2
Кухня
(  №  316071 объекта) Санкт- Петербург, Дачный проспект д.9 корп.2 . Продается 3-х комнатная квартира общ.пл.- 56,5 кв.м, жилая - 39,10 кв.м , c кухней- 6,5 кв.м. Квартира расположена на 3м этаже 9 -ти этажного панельного дома  1969 г.п.  Окна стеклопакеты. Комнаты смежно-изолированные. Изолированная комната- 13,10 кв.м.  Смежные комнаты 17,7 кв.м, из нее  комната 8,3 кв.м и  в ней  застекленная  лоджия .  Есть в прихожей подсобные помещения.   Дом оборудован мусоропроводом.  , лифт. Живописный двор. Ухоженная дворовая  территория с детской и спортивной площадками. Удачное расположение дома.  Рядом с домом находится магазин Перекресток- 24 часа и Магнит. В шаговой доступности метро Проспект Ветеранов.-500 метров. Удобный выезд на КАД Дачный проспект развязка и ЗСД.  Развитая  транспортная и логистическая инфраструктура - с одной стороны Проспект Ветеранов, с другой Проспект Стачек и Ленинский пр-кт.  Встречная покупка.
Цена
9 000 000 ₽

Затрудняетесь с выбором?

Не тратьте время на поиск и анализ множества предложений недвижимости
Мы сделаем это за вас профессионально, быстро, предложив оптимальные варианты по выгодной цене!

3-х комнатная квартира

Первомайское 1-е (Тайвань) м.Беговая


42 м2
Общая
31.6 м2
Жилая
4 м2
Кухня
192 Предлагается к продаже  3 к.квартира Лен.обл. Выборгский р-он п.Первомайское-1 д.2. на 2-ом этаже трехэтажного кирпичного дома г.п.1972. В 13 км. от п. Первомайское. От ж/д Рощино (27 км).В квартире сделан капитальный-качественный ремонт с  небольшой перепланировкой. Общ.42 кв.м./31,6, планировка смежно-изолированная комната 9,5+12,4+ кухя-гостинная 18 кв.м,с/у сомещ. душевая кабинка. Квартира продается с мебелью и бытовой техникой, заезжай и живи. Подключен интернет(Мегафон). Сделан теплый пол. Плита электрическая, отопление центральное, горячая вода бойлер. Окна стеклопакеты. Бонусом прилагается огород 3 сотки (разработан, есть посадки) и погреб. Поселок расположен в окружении соснового леса, грибные и ягодные места. Озеро лесное 15-20 мин пешком.В поселке есть магазинчик. Вся инфраструктура сетевые магазины, школа, дет садики, больница, сбербанк и т.д.  находится в п.Первомайское. Отличное предложение для загородного отдыха  кто устал от городской суеты. Взрослый собственник. Обременений нет. Вся сумма в дкп. Прямая продажа. Просмотры по предварительной договоренности. Расписание автобуса №124  от Первомайское-1(Тайвань) 6-50; 8-50;14-50;18-00;19-50 через п.Первомайское до пгт Рощино ж/д..
Цена
3 448 000 ₽

3-х комнатная квартира

Всеволожск г., Плоткина ул. м.Ладожская


57.1 м2
Общая
39 м2
Жилая
6.1 м2
Кухня
Ленинградская область, Всеволожский р-н, Всеволожск г., Плоткина ул. Квартира в хорошем состоянии с хорошей планировкой. Большая гостиная 18.8 м.кв, две спальни 11,3+8,9, просторная прихожая. В кухне встроенный кухонный гарнитур. В квартире две большие застекленные лоджии.   Дом теплый, парадные чистые, лифт есть. Центр спального микрорайона города. В пешей доступности школа, детский сад, остановка транспорта до СПб и по городу, продуктовые магазины, детские кружки, спортзалы, банки и пр. Более 5-ти лет в собственности, один собственник. Встречная покупка не сложная.
Цена
6 900 000 ₽

3-х комнатная квартира

Ломоносов г., Дворцовый просп. м.Беговая


74.1 м2
Общая
52.3 м2
Жилая
7.8 м2
Кухня
Шикарная,просторная, светлая трёхкомнатная квартира в историческом центре г. Ломоносов. Теплота и уют окружают в каждой комнате квартиры. Сделан ремонт. Окна выходят на проспект и во двор, потолки 3,15м. В квартире 3 изолированные комнаты 15+18,3+19 (угловая,разделена перегородкой для двух детей), кухня 7,8 кв.м. В шаговой доступности: ЖД вокзал, городской продуктовый и вещевой рынок, остановки общественного транспорта, сетевые магазины, детский сад, Финский залив. Исторический центр прекрасногго города Ломоносов. Квартира в собственности более 5-ти лет. Прописка - Санкт Петербург. Ипотека, маткапитал, сертификат, субсидии.
Цена
9 499 000 ₽

Комната в 3-комн. квартире

Старая дер., Верхняя ул. м.Улица Дыбенко


61.4 м2
Общая
13.8 м2
Жилая
7 м2
Кухня
(27) Комната в 3х комнатной квартире в хорошем состоянии. С мебелью и техникой. Все остается. Отличные дружные соседи. Помещения общего пользования в хорошем состоянии. Собственность более 5 лет.Подходит под ипотеку. Прямая продажа. Возможен ТОРГ!!
Цена
1 800 000 ₽

3-х комнатная квартира

Приозерск г., Героя Богданова ул. м.Парнас


97.4 м2
Общая
60.7 м2
Жилая
12 м2
Кухня
Ленинградская область, Приозерский район, г. Приозерск ул. Героя Богданова д.7. Трех комнатная  квартира на втором этаже двухэтажного дома расположенного в самом тихом районе города. Квартира светлая, теплая, чистая. Комнаты изолированные 20+17+20 кв.м. Кухня 12кв.м. В двухстах метрах от дома река Вуокса с хорошо оборудованным парком для прогулок как пеших так и на велосипедах и самокатах. Дом одноподъездный построен в 2010 году по экспериментальной финской технологии. В пешей доступности всевозможные  магазины, детский сад, школа, поликлиника,банки. Просмотр по предварительной договоренности.
Цена
8 100 000 ₽

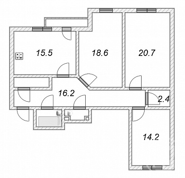
3-х комнатная квартира

Первомайское пос., Голландский пр-зд м.Беговая


95.2 м2
Общая
53.5 м2
Жилая
15.5 м2
Кухня
192 Предлагается к продаже отличная 3 к.квартира  Лен.обл.Выборгский район п.Первомайское пр.Голандский д.2 в коттеджном поселке Кивеннапа-Север. Этаж 3/3.гп.2012. Общ.пл. 95,2 кв.м. хорошая планировка, просторная кухня 15,5 кв.м+ балкон, комнаты изолированные18,6 кв.м +20,7кв.м.+14,2 кв.м, большая прихожая 16,2 кв.м., две кладовые по  2,4 кв.м, с/у разд. Состояние хорошее .Все центральные коммуникации(газовый котел).Охраняемая территория. В шаговой доступности 15 минут пешком п. Первомайское с развитой инфраструктурой: больницей с детским отделением, сетевыми магазинами («Лента», «Пятёрочка», «Магнит», «Улыбка радуги»), аптеками, парикмахерскими, торговыми центрами, отделениями `Почта России` и `Сбербанка`. Удобное сообщение с СПБ. Один взрослый собственник. Прямая продажа. Без обременений. Просмотры по предварительной договоренности.
Цена
9 000 000 ₽

Комната в 3-комн. квартире

Витебская-Сортировочная ул. м.Волковская


61 м2
Общая
11 м2
Жилая
8 м2
Кухня
Продается комната в малонаселенной квартире по адресу Санкт-Петербург, ул. Витебская Сортировочная д.20. метро Бухарестская Квартира спокойная, соседи- две женщины. Поддерживается чистота и порядок. До ближайшей станции электрички 10 мин пешком. И через одну остановку вы в центре города на Витебском вокзале. М. Бухарестская в 20 мин ходьбы. 15 мин пешком до магазина О,Кей, ТЦ РИО. Звоните, отвечу на все интересующие вопросы, организую просмотр.
Цена
1 550 000 ₽

Комната в 3-комн. квартире

Ленинский просп. м.Ленинский проспект


81 м2
Общая
33.3 м2
Жилая
13.9 м2
Кухня
В продаже 2 комнаты в 3-хкомнатной квартире, 2010 года постройки дом, 2 лифта пассажирский и грузовой, комфортный 2 этаж, окна комнат выходят во двор. Общая площадь квартиры 81кв.м., площадь комнат, которые продаются 18,0 + 15,3, комнаты изолированные, площадь кухни 13,9 с выходом на застекленную лоджию. Встроенная кухня с техникой остаются в подарок Покупателю. В комнатах сделан ремонт: выровнены стены, на полу качественный ламинат, стеклопакеты, новая батарея, состояние комнат хорошее, в местах общего пользования удовлетворительное. В 10ти минутах ходьбы Финский залив, с потрясающими видами! Курортные места, организованная зона отдыха! В 2025 году будет открыта новая станция метро. Вся инфраструктура рядом, до метро Ленинский проспект 10-15 минут транспортом. Возможен обмен на 2-3-хкомнатную квартиру, готовы рассмотреть варианты.
Цена
7 300 000 ₽

3-х комнатная квартира

Новогорелово пос. (Виллозское с.п.) м.Проспект Ветеранов


66.4 м2
Общая
34 м2
Жилая
12.5 м2
Кухня
ЛО, Ломоносовский р-н, Новогорелово пос. (Виллозское с.п.) к.5.2 Единственный в  доме трехкомнатный вариант представлен 3к.  квартирой общей площадью 66,4 кв.м. Прямоугольная кухня 12,5 кв.м. позволяет разделить зоны готовки и отдыха. Из кухни есть выход на просторный балкон шириной 1,45 метров, который можно использовать как дополнительное место для хранения крупных вещей. Квартира имеет раздельный санузел с гостевым туалетом, небольшую прихожую и три одинаковые по размеру комнаты. Все окна квартиры выходят на северо-восток в сторону Волхонского шоссе и Санкт-Петербурга, отличный вид из окон. Выполнена подготовка под чистовую отделку: ровные полы и стены, разводка электрики с установкой розеток и выключателей, скрытые коммуникации в стяжке пола к радиаторам отопления, гидроизоляция в санузлах, металлическая входная дверь, стеклопакеты, остеклённый балкон шириной 1,45 метра. Установлены счетчики на воду, тепло и электрический счетчик. В пешеходной доступности детские сады, школы, магазины и спортивные объекты, закрытые от машин зеленые площадки, благоустроенные придомовые территории с общедоступным Wi-Fi, уютными входными группами и общественными зонами.. В пешей доступности торговый центр `Далпортсити`, школа, супермаркеты `Магнит` и `Стекляшка`, храм. Выезд на кольцевую автодорогу расположен в километре по Волхонскому шоссе. До станции метро `Проспект Ветеранов` можно доехать за 15 минут. В будущем в районе планируется провести ЗСД и открыть две станции метро – `Пулково` и `Ульянка`.. По периметру квартала  размещены открытые гостевые автостоянки. Наша компания сопроводит вас на всех этапах сделки и поможет в одобрение ипотеки. Все наши услуги без доп. комиссий для вас.
Цена
8 300 000 ₽

Закажите консультацию специалиста

Оставьте заявку
Нажимая на кнопку «Отправить заявку», Вы даете согласие на обработку своих персональных данных.
×
продажа
Что вы хотите продать?
Сколько комнат?
Тип объекта?
В каком регионе?
В каком районе Санкт-Петербурга
В каком районе Ленинградской области?

Оставьте Ваш контакт и наши специалисты свяжутся с Вами в самые кротчайшие сроки.

+7
×
новостройка
Какие районы Санкт-Петербурга Вас интересуют?
С какой целью Вы планируете приобрести квартиру?
Сколько комнат должно быть в Вашей будущей квартире?
Какой вариант отделки Вам необходим?
Когда Вы хотите заехать?
В какой бюджет хотите уложиться?

Оставьте Ваш контакт и получите подборку квартир без риска столкнуться с мошенничеством и недостроем.

+7
×
сдать
Что вы хотите сдать?
Скольки комнатная квартира?
Какой тип коммерческой недвижимости вы хотите сдать?
В каком регионе?
В каком районе Санкт-Петербурга
В каком районе Ленинградской области?

Оставьте Ваш контакт и наши специалисты свяжутся с Вами в самые кротчайшие сроки.

+7
Этот сайт использует файлы cookie для улучшения пользовательского опыта. Cookie - это небольшие текстовые файлы, которые сохраняются на вашем устройстве и помогают нам запоминать ваши предпочтения, анализировать посещаемость сайта и предоставлять более персонализированный контент. Использование файлов cookie позволяет нам сделать сайт удобнее для вас. Политика конфиденциальности
Принять Отказаться