Продажа квартир и комнат

Комнаты
Например: Массальского, 4
Ванные
3-х комнатная квартира

Тайцы пос., Пушкина ул. м.Проспект Ветеранов


70.8 м2
Общая
47.4 м2
Жилая
7.15 м2
Кухня
Просторная квартира с камином двумя балконами и зеленой зоной барбекю Местонахождение: Ленинградская область, Гатчинский район, пгт Тайцы, ул. Пушкина д.95 Поселок находится на территории бывшей Ингерманландии, упоминается с 1500 года, в свое время владельцами поселения были прадед А.С. Пушкина Абрам Петрович Ганнибал , затем горнопромышленник Александр Григорьевич Демидов При нём здесь была выстроена усадьба, разбит парк с множеством различных сооружений, парк и усадьба сохранились до наших дней. Квартира: на 1 этаже двухэтажного кирпичного дома, просторная, с двумя застекленными балконами, один балкон имеет выход в собственную зону барбекю с зеленым участком, полы утепленные, отопление электрическое, камин; пол в комнатах - ламинат; в кухне, прихожей, ванной - плитка, центральное водоснабжение, установлен бойлер, ванная, просторная прихожая, кладовая, в квартире два погреба. Мебель и оборудование остается по согласованию с покупателем. Территория: собственная зона барбекю и зеленый участок с плодоносящими яблоней и вишней, ягодными кустарниками, есть место под теплицу; навес для автомобиля с выходом в просторный сарай для хозяйственных нужд. Объекты рядом: магазины и аптеки в 10 минутах ходьбы, 15 мин до остановки общественного транспорта, 20 минут ходьбы до железнодорожной станции `Тайцы` (Балтийское направление), в пешей доступности детский сад и школа, в 5 минутах ходьбы находится общественная баня, рядом парк с Демидовской усадьбой. Если вы мечтаете о квартире в зеленом районе и о загородном доме с зеленым участком это ваш вариант, квартира совмещает в себе удобства квартиры и прелести загородного дома!
Цена
6 150 000 ₽

3-х комнатная квартира

15-я линия В.О. м.Василеостровская


55.3 м2
Общая
41.2 м2
Жилая
9.8 м2
Кухня
СПБ, 15 линия В.О, 30. УНИКАЛЬНОЕ ПРЕДЛОЖЕНИЕ ! Предлагаем вашему вниманию уютную, просторную, привлекательную 3к.к(60кв.м)в центре Васильевского острова! 6-8 минут ходьбы до метро   «Василеостровская»! Тёплый, кирпичный дом! 1/3 этаж! Закрытая территория! Сухой и чистый подъезд/подвал! Изолированные комнаты! Потолки 2.8м! Большая кухня 9,8кв.м! Уникальное расположение - в глубине двора, вдали от шумных проспектов и линий, вся территория огорожена, •доступ во двор по электронным ключам или с помощью дистанционного пульта управления автоматическими воротами, имеются парковочные места ! Документы готовы к сделке! Взрослые собственники! УМЕСТЕН РАЗУМНЫЙ ТОРГ. Принимаем любые формы оплаты, поможем с одобрением ипотеки! Звоните! Приходите на просмотр!
Цена
9 950 000 ₽

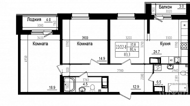
3-х комнатная квартира

Янино-1 пос., Оранжевая ул. м.Улица Дыбенко


74 м2
Общая
40 м2
Жилая
14 м2
Кухня
Ленинградская область гп Янино 1 ул. Оранжевая Квартира продается без отделки. Объекты инфраструктуры: школа; два детских сада; коммерческие помещения на первых этажах под аптеки, кафе и магазины. В дворах, закрытых от автомобилей,  зеленые зоны,  деревья и кустарники , пешеходный бульвар. Окружение Ржевский лесопарк и Колтушские высоты с Пундловским озером. В Янино-1 работают амбулатория, школа и детский сад комбинированного вида №62. В пешей доступности универсамы `Пятерочка` и `Перекресток`. За 10 минут автомобилем можно добраться до торгово-развлекательного центра `Мега Дыбенко`. От дома до спортивного клуба `Петро спорт` с бассейном 15 минут ходьбы. До Санкт-Петербурга из Янино добираются по Шоссейной улице. Расстояние до кольцевой 2 км. До метро `Ладожская`, `пр. Большевиков` -  автобусом ехать полчаса.
Цена
9 700 000 ₽

Затрудняетесь с выбором?

Не тратьте время на поиск и анализ множества предложений недвижимости
Мы сделаем это за вас профессионально, быстро, предложив оптимальные варианты по выгодной цене!

3-х комнатная квартира

Всеволожск г., Александровская ул. м.Ладожская


67 м2
Общая
45.5 м2
Жилая
7 м2
Кухня
Уважаемые покупатели,  к продаже предлагается 3х комнатная квартира по ул. Александровская 77к1 г. Всеволожске. Дом расположен в районе с развитой инфраструктурой. Не далеко от дома расположены: школа, детский садик, лицей, отделения банков, поликлиника, ЦРБ, администрация, аптеки, кафе. В пешей доступности новый современный парк `Песчанка`. Рядом с домом остановка общественного транспорта. До ст. метро ` Ладожская`-30 минут на автобусе 462; 430. От ж/д станции `Всеволожская` -35 минут на электричке до Финляндского вокзала. Без обременений.
Цена
6 900 000 ₽

2-х комнатная квартира

Парголово пос., Ольгинская (Торфяное) дор. м.Парнас


84 м2
Общая
32 м2
Жилая
25 м2
Кухня
Для любителей и ценителей шикарной жизни по разумной цене! Продается теплая просторная квартира, с увеличенной кухней-гостиной, огромной лоджией и балконом и видом на Шуваловский парк. В новом современном ЖК, со скоростными лифтами и вентилируемыми фасадами, что обеспечивает тепло и комфорт в квартире в любую погоду и в любое время года. На закрытой территории ЖК есть свой детский сад, детские и спортивные площадки, магазины и кафе. В 10 минутах ходьбы  метро Парнас, школы, детские сады и  вся востребованная инфраструктура обжитого района. Для любителей спорта и физкультуры, есть прекрасная возможность пробежек и прогулок по историческому Шуваловскому парку, буквально через дорогу от дома.
Цена
20 200 000 ₽

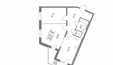
2-х комнатная квартира

Матроса Железняка ул. м.Пионерская


71 м2
Общая
32.34 м2
Жилая
16.7 м2
Кухня
Продается шикарная просторная квартира квартира в уникальном  ЖК Приморского района. Для тех кто ценит комфорт и класс жилья! ;  В самом квартале  3 детских сада, школа на 1500 мест. В коммерческих помещениях на первом этаже  расположены  магазины, аптеки, кафе и др. ЖК благоустроен не просто красиво и практично, а с любовью. Высажены хвойные деревья и кустарники, что позволяет делать воздух не просто свежим и чистым, но и целебным.   В шаговой  доступности расположены торговые центры европейского уровня , магазины, отделения почты и банков, спортивные и медицинские центры . Рядом много парков и мест для прогулок и занятий спортом. Метро `Пионерская` расположено в 10 минутах пешком!
Цена
23 470 000 ₽

2-х комнатная квартира

Бугры пос., Тихая ул. м.Девяткино


48 м2
Общая
19 м2
Жилая
16 м2
Кухня
Продается двухсторонняя теплая, просторная  и уютная квартира  с европланировкой. Увеличенная кухня- гостиная имеет выход на просторный балкон. Квартира в новом благоустроенном ЖК, с просторными дворами, детскими и спортивными площадками. На территории ЖК есть свои детские сады и современная просторная школа. До станции метро Девяткино, Парнас и Проспект Просвещения 15-20 минут транспортом. ЖК окружают просторные цветущие поля, протекает ручей с уточками, есть где погулять с детьми и позаниматься физкультурой. Если вы хотите жить на природе и свежем воздухе, но совсем рядом с городом и благами цивилизации, тогда Вам к нам!))
Цена
8 200 000 ₽

2-х комнатная квартира

Михаила Дудина ул. м.Парнас


59 м2
Общая
36 м2
Жилая
13 м2
Кухня
Дом в пешей доступности от метро Парнас. Удобный этаж. Из окон вид во двор. Двор просторный, есть детские площадки, зелень. Парковка свободная. В квартире нужен ремонт. Планировка отличная. Большая кухня, большие квадратные комнаты, просторный санузел, в ванной и туалете много места. Прихожая тоже вместительная. Подходит для семьи, рядом все необходимые условия.
Цена
9 948 000 ₽

2-х комнатная квартира

Ветеранов просп. м.Проспект Ветеранов


59.7 м2
Общая
27.4 м2
Жилая
16.8 м2
Кухня
Санкт-Петербург, ЖК `Английская миля`, пр. Ветеранов, д.169, к.6, стр.1 Вашему вниманию предлагается 2 комнатная квартира. Приобретение данного объекта возможно только за прямые средства через английский аукцион. Процедура торгов регламентируется федеральным законом, что делает сделку безопасной. Мы всегда работаем только с одним клиентом по одному объекту, чтобы клиент получил возможность приобретения по самой выгодной цене. Наша компания сопровождает сделку до получения клиентом права собственности. Не упустите свою выгодную покупку! Позвоните и запишитесь к нам на консультацию. Предложение ограничено по времени.
Цена
7 667 000 ₽

2-х комнатная квартира

Выборг г., Кривоносова ул.


58.1 м2
Общая
36.8 м2
Жилая
7.9 м2
Кухня
Цена актуальна только до 31 декабря 2025 г.Предлагаем Вашему вниманию квартиру 3-Е  с панорамным видом на бухту Радуга`, которая является неотъемлемой частью Финского залива. 6-й этаж в 9-этажном отремонтированном доме В доме 1 подъезд Просторная, светлая и теплая – изолированные комнаты, раздельный санузел Современная планировка: кухня- гостиная с панорамными окнами Вид из окон: Финский залив, на бухту Радуга, потрясающие рассветы и закаты, зимой – северное сияние! Зеленый двор с детской площадкой, парковочные места, подход к воде, домой можно подъезжать на гидроцикле. Стеклопакеты. В квартире остается вся мебель и техника. 10 минут до центра, 5 минут до ж/д вокзала В шаговой доступности: школы, детские сады, магазины, кафе, парк на горе Папула, стадион, конный клуб, которые можно наблюдать с окна квартиры. Идеально для тех, кто: - Мечтает о просторном жилье с видом на воду - Ценит удобство расположения и развитую инфраструктуру - Ищет вариант для жизни с комфортом - Хочет инвестировать в недвижимость с перспективой Идеально подходит под сдачу . Мы гарантируем поддержку на всех этапах сделки Не упустите возможность покупки квартиры с видом на бухту.
Цена
6 500 000 ₽

2-х комнатная квартира

Кальтино дер., Солнечная ул. м.Улица Дыбенко


72 м2
Общая
35 м2
Жилая
15 м2
Кухня
Продается 2х комнатная квартира в элитном коттеджном поселке `Багатель` с евро ремонтом с использованием качественных импортных материалов. В квартире 2 комнаты: 19,1м + гардеробная 5,2м, 13,4м. Ванная 5,6м, два балкона:в большой комнате и на кухне. Прихожая 9,6м. Гардеробная оборудована двумя большими шкафами. В квартире газовый котел, всегда горячая вода, отопление регулируется под себя. По всей квартире дизайнеские натяжные потолки, полы-паркетная доска. На территории коттеджного поселка 2 детские площадки, подземная парковка. Вся территория огорожена закрывается электрическими воротами. В шаговой доступности Лента, Вимос. В 10 минутах ходьбы Ждановское озеро для купания и еще 2 озера чуть дальше.
Цена
10 200 000 ₽

2-х комнатная квартира

Ломоносов г., Петровский пер. м.Беговая


44.1 м2
Общая
27.9 м2
Жилая
4.9 м2
Кухня
Продается квартира на первом этаже,этаж высокий.Комнаты изолированные.В шаговой доступности вся инфраструктура.Один собственник.Прямая продажа.Покажем в удобное для вас время.В квартире никто не прописан и никто не живет
Цена
4 600 000 ₽

Закажите консультацию специалиста

Оставьте заявку
Нажимая на кнопку «Отправить заявку», Вы даете согласие на обработку своих персональных данных.
×
продажа
Что вы хотите продать?
Сколько комнат?
Тип объекта?
В каком регионе?
В каком районе Санкт-Петербурга
В каком районе Ленинградской области?

Оставьте Ваш контакт и наши специалисты свяжутся с Вами в самые кротчайшие сроки.

+7
×
новостройка
Какие районы Санкт-Петербурга Вас интересуют?
С какой целью Вы планируете приобрести квартиру?
Сколько комнат должно быть в Вашей будущей квартире?
Какой вариант отделки Вам необходим?
Когда Вы хотите заехать?
В какой бюджет хотите уложиться?

Оставьте Ваш контакт и получите подборку квартир без риска столкнуться с мошенничеством и недостроем.

+7
×
сдать
Что вы хотите сдать?
Скольки комнатная квартира?
Какой тип коммерческой недвижимости вы хотите сдать?
В каком регионе?
В каком районе Санкт-Петербурга
В каком районе Ленинградской области?

Оставьте Ваш контакт и наши специалисты свяжутся с Вами в самые кротчайшие сроки.

+7
Этот сайт использует файлы cookie для улучшения пользовательского опыта. Cookie - это небольшие текстовые файлы, которые сохраняются на вашем устройстве и помогают нам запоминать ваши предпочтения, анализировать посещаемость сайта и предоставлять более персонализированный контент. Использование файлов cookie позволяет нам сделать сайт удобнее для вас. Политика конфиденциальности
Принять Отказаться