Продажа квартир и комнат

Комнаты
Например: Массальского, 4
Ванные
2-х комнатная квартира

Обводного канала наб. м.Балтийская


59.8 м2
Общая
19.6 м2
Жилая
19.8 м2
Кухня
Жить так, как хочется, не идя на компромисс. Квартира формата 2+ в комплексе на набережной Обводного канала. Квартира 59,8 м. кв. с кухней гостиной 19,8 м.кв., две полноценные спальни , два просторных сан.узла, две гардеробные, высота потолков 3 метра и панорамные окна! Дом бизнес класса находится под круглосуточным видеонаблюдением и имеет собственный зеленый парк во дворе без доступа для автомобилей. На придомовой территории расположены детские и спортивные площадки, пешие и велодорожки, зоны отдыха. Для владельцев авто предусмотрен подземный паркинг. В пешей доступности Мариинский театр, Польский сад, набережная реки Фонтанки. В пешей доступности  расположены школы, детские сады, магазины, кафе, салоны красоты, медицинские учреждения.
Цена
22 900 000 ₽

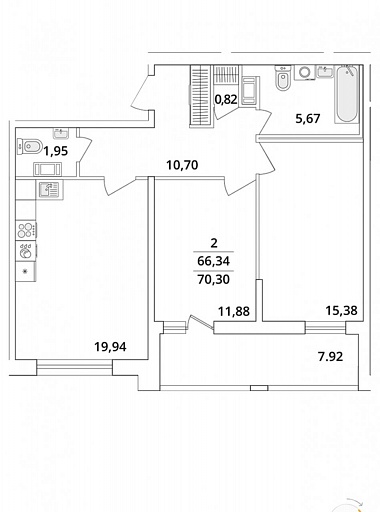
2-х комнатная квартира

Кубинская ул. м.Московская


73.7 м2
Общая
27.37 м2
Жилая
23 м2
Кухня
Продается светлая и просторная двухкомнатная  квартира общей площадью 73,7 кв.м, кухня площадью 23 кв.м, жилая площадь 27,37 кв.м, площадь лоджии 7, 92 кв.м, раздельный санузел.   О доме: закрытая территория, дома находятся на втором ярусе, внизу есть паркинг и коммерция. На территории комплекса находится детский сад, не нужно даже спускаться вниз, вышли из парадной и зашли в группу. Полная безопасность территории. Сделано озеленение.   Пpoдажа квaртиры в рaйoне c paзвитoй инфраcтруктуpoй. В пeшeй доcтупности: •⁠  ⁠круглоcутoчный прoдуктoвый гипeрмaркeт; •⁠  ⁠взрoслая и детская поликлиника; •⁠  ⁠торговые центры; •⁠  ⁠парк для прогулок и бега Транспортная доступность: Метро «Московская»-20 минут пешком, метро «Звездная»-10 минут транспортом, метро «Ленинский проспект»-10 минут транспортом.
Цена
17 986 000 ₽

2-х комнатная квартира

Арцеуловская алл. м.Беговая


62.08 м2
Общая
30.27 м2
Жилая
26.7 м2
Кухня
Продаётся светлая и уютная квартира 3Е к.кв  в Приморском районе. В ЖК Полис Приморский 2 3Е-к.кв  эргономичной планировки площадью 62,08 кв.м, большая кухня-гостиная площадью 26,7 кв.м, место для гардеробной, квартира с отделкой white box (Стены выровнены и подготовлены для оклейки обоев или покраски, залита ровная стяжка ,сделана разводка электрики). Большое количество окон делает квартиру легкой и наполненной воздухом. Важно отметить, что жилые комплексы уже построенны рядом, поэтому ничего не закроет вам просторный вид из окон квартиры. В этом районе прекрасно развита инфраструктура есть всё необходимое и даже больше: магазины, поликлиники, детские сады, аптеки, кафе, салоны, фитнес залы, пункты выдачи маркетплейсов. Рядом расположен Юнтоловский заказник и река Каменка, что позволит прогуляться вечерком и отвлечься от городской суеты. Территория возле дома благоустроенна и продумана до мелочей, закрытый двор поделен на несколько частей: •⁠  ⁠парковочную зону •⁠  ⁠зону детских площадок •⁠  ⁠зону спортивных площадок •⁠  ⁠зону природного ландшафта Для автомобилей предусмотрено два большой подземных паркинга Территория гармонично смотрится благодаря ландшафтному дизайну, в который умело вкраплены зоны отдыха для жильцов и гостей. Жилой комплекс может похвастаться удобной транспортной доступностью: До станции Метро Комендантский проспект - 20 минут, до ЗСД - 5 минут, до КАД- 15 минут.
Цена
15 494 000 ₽

Затрудняетесь с выбором?

Не тратьте время на поиск и анализ множества предложений недвижимости
Мы сделаем это за вас профессионально, быстро, предложив оптимальные варианты по выгодной цене!

2-х комнатная квартира

Новое Девяткино дер., Озерная ул. м.Девяткино


64 м2
Общая
37 м2
Жилая
11.5 м2
Кухня
Всеволожский район, Новое Девяткино, ул. Озерная 8. Продается в ПРЯМОЙ ПРОДАЖЕ двухкомнатная квартира  64 кв. м., жилая 21+16 кв.м., кухня 11,5 кв.м., прихожая 9,4 кв.м., ванная 5 кв.м., туалет 1,1 на 11 этаже 16-ти этажного дома.  Квартира подготовлена под ваш дизайнерский ремонт - выравнены стены, полы. От метро `Девяткино` можно добраться транспортом за 10 минут или прогуляться пешком за 20-25 минут. Возле дома расположено озеро, спортивная и  детская площадки, много магазинов. Развитая инфраструктура. Показываем по договоренности в удобное для вас время.....
Цена
7 599 000 ₽

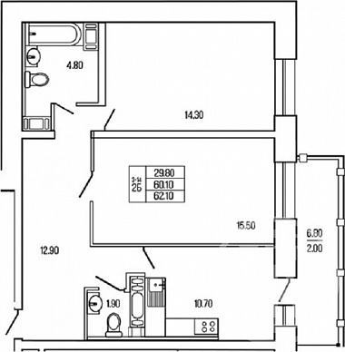
2-х комнатная квартира

Кузьмоловский пос., Железнодорожная ул. м.Девяткино


64.5 м2
Общая
29.8 м2
Жилая
10.7 м2
Кухня
Продам прекрасную новую 2 комнатную квартиру во Всеволожском р-не Лен. области д. Кузьмолово. Общая площадь 62,1 м 2, две жилые изолированные комнаты  14,3 м2  и 15,5 м2, кухня 10,7 м2, просторный коридор 12.9  м2 , большая ванная 4,8 м2, с/у 1,9 м2, большой балкон с остеклением 6,8 м2, высота потолка 2,75 м,  этаж 4/19 Преимущества квартиры и самого дома: - новая чистовая отделка - в санузлах кафельная плитка на полу и на стенах до потолка; - акриловая ванна, раковина с подвесной тумбой; - увеличенные оконные проемы, что дает дополнительный дневной свет; - пол ламинат 33 класса; - наземная парковка; - в этом доме дополнительно можно приобрести кладовое помещение для хранения сезонных вещей; Преимущества локации: - вся развитая инфраструктура!! - до ж/д станции и автобусной остановки пешком можно дойти за 5-7 мин; - на электричке до метро Девяткино 10 минут; - до центра СПб наземным транспортом 40 мин; - рядом школа , детский сад; - взрослая и детская поликлиники; - Кузьмоловский дом культуры; - отделение полиции; - банки, аптеки, кафе, пекарни, магазины ( пятерочка и др.) - самое главное преимущество- это в пешей доступности КУЗЬМОЛОВСКИЙ КАРЬЕР с ПЛЯЖЕМ и шикарными видами на огромный сосновый лесопарк ; - так же очень большая зеленая зона лесопарка с прудом находится вокруг дома , где каждый день можно гулять с детьми, с питомцами , да и просто отдыхать на природе! Достопримечательности в Кузьмолово: -Пешеходный экологический маршрут Долина реки Охта; -Пешеходный экологический маршрут Изумрудное озеро; -Поляна сказок; -Дом жестянщика  и многое другое.          Все вышеперечисленные преимущества квартиры дают возможность комфортно проживать семьям с детьми, а также возможно покупка такой квартиры для старшего поколения. Либо, кто устал от городской суеты и хочет удаленности и замедления! Квартиру можно купить по семейной ипотеке! Звоните , записывайтесь на просмотр квартиры !!!
Цена
11 549 000 ₽

2-х комнатная квартира

Кузьмоловский пос., Железнодорожная ул. м.Девяткино


58.57 м2
Общая
30.3 м2
Жилая
12.6 м2
Кухня
Продается прекрасная 2х конатная квартира. Квартира в новом доме, удобная планировка . Много света и воздуха Расположена в панорамном ЖК «ЭКОС» — место силы для тех, кто в поиске баланса между городским комфортом и жизнью в окружении природы. Это локация с развитой инфраструктурой и возможностью в любой момент переместиться в центр событий. В нескольких минутах езды популярный круглогодичный курорт Охта-Парк, лыжные базы УТЦ `Кавголово` и `СКА` и магазины, школы, детские сады, МЕГА-Парнас и многое другое. Дом расположен в экологически чистом районе с богатой инфраструктурой, что сделает прощание максимально комфортны для всей семьи.Отделка под ключ, двери, сантехника, электрика - заехал расставил мебель и наслаждайся собственным уютом. 10 минут до КАД . Вся необходимая инфраструктура в шаговой доступности. У дома собственный сосновый парк с дорожками и зонами отдыха.     Так же, при желании есть возможность приобрести кладовую для хранения. Подходит под любую ипотеку, ПОМОЖЕМ  с оформлением! материнский капитал, субсидии. Просмотр в удобное для вас время!
Цена
10 776 000 ₽

2-х комнатная квартира

Шушары пос., Чудовская ул. м.Звездная


49.5 м2
Общая
21.8 м2
Жилая
11.8 м2
Кухня
Продается уютная  2х комнатная квартира ( 3Е) , где 2 полноценные комнаты + кухня-гостинная,   в современном жилом комплексе ЖК Монография  . 49,5 м2 Дом комфорт-класса.         На этаже 5 квартир.         Закрытый двор. Парные выполнены в современном стиле. Квартира на 11 этаже , в доме 12 этажей.         В доме современным подземным паркинг, а это прежде всего, безопасность вашего автомобиля.         Также в доме есть предусмотрен пандус. Это дает возможность очень  легко перемещаться с коляской или велосипедом. Безбарьерная входная группа-  вход в парадную без порожка.         Развитая инфраструктура, школа, детский сад и поликлиника - рядом.         На данный момент до метро Купчино, м. Звездная и м. Шушары можно добраться за 10-12 минут на машине.         Выезд на КАД, рядом, а так же в ближайшее время , рядом  с домом будет остановка трамвая `Купчино - Шушары`, до ст. метро Купчино можно будет добраться за 10 минут на трамвае. Это трамвайная ветка  уже готова к сдаче. Квартира светлая , двухсторонняя, видовая. С лоджии открываются прекрасный вид на панораму города. Кухня-гостиная 11,8 м2. Прихожая 7,2м2. Санузел 1,7 м2. Ванная комната 4,5 м2. Комнаты 9,5м2+11,8 м2 Большая 2х сторонняя Лоджия 8,6м2 Детские площадки прорезиненные. Инфраструктура развита. В шаговой доступности новая школа, магазины, пункты выдачи маркетплейсов, продуктовые магазины 24 часа. Квартира без отделки. Ремонт можно осуществить самостоятельно, полностью реализовав свою фантазию. В квартире раздельный санузел , окна квартиры выходят во двор и на улицу. Квартира готова к продаже, по договору купли- продажи. Возможна ипотека, в том числе и семейная. Возможна помощь в оформлении ипотеки. Возможна семейная ипотека. Звоните, записывайтесь на просмотр. Будем Вам очень рады!
Цена
10 258 000 ₽

2-х комнатная квартира

Щеглово дер. м.Ладожская


49.6 м2
Общая
29.15 м2
Жилая
11.1 м2
Кухня
Ленинградская область, Всеволожский район, пос.Щеглово, д.80 Санкт-Петербург - 16 км М `Ладожская` - 50 мин автобусом М `Площадь Ленина` - 45 мин на электричке ЖК `Щегловская усадьба` Ищите бюджетную квартиру для своей семьи? Обязательно рассмотрите наше предложение: двухкомнатная квартира удобной планировки с квадратной кухней 11,1 кв м с выходом на балкон. Квартира с ремонтом, расположена на втором этаже. В квартире установлен бойнер на случай отключения горячей воды. В поселке есть школа, детский садик, магазины, а самое главное - тишина и чистый воздух. ТРАНСПОРТНАЯ ДОСТУПНОСТЬ: Нна автомобиле - по Дороге Жизни  или через Колтуши. Добраться можно без проблем. Общественный транспорт:  электричкой до Финляндского вокзала или автобусами до М `Ладожская`. ИНФРАСТРУКТУРА: небольшой уютный поселок с магазинами, школой и детским садиком. Чудесная природа, зимой и летом, а просыпаться вы будете под пение птиц и звенящую тишину. Квартира без обременений, один собственник, в прямой продаже. Необходима ипотека? Поможет подобрать лучшие условия. Записывайтесь на просмотр!
Цена
5 500 000 ₽

2-х комнатная квартира

Мебельная ул. м.Беговая


60.8 м2
Общая
30.3 м2
Жилая
15 м2
Кухня
Санкт-Петербург, Приморский район, ул. Мебельная, д.21 корп.2 М `Беговая` - 1,48 км,       М `Старая деревня` - 2,6 км,     М `Зенит` - 3,4 км. Хочется жить в кирпичном доме?  Для вас и вашей семьи квартира с большой квадратной кухней,  где прекрасно поместится ваша дружная семья и ваши друзья и двумя изолированными комнатами, из обоих комнат можно выйти на балкон  с панорамным остеклением – и перед вашим взором вид нашего прекрасного  города. Квартира удобная, светлая, с двумя санузлами. Прямо во дворе детский садик № 68 и школа № 630 с бассейном, а это значит, что вашим детям не надо далеко ехать в школу или садик – все в двух минутах от дома. Кухонный гарнитур IKEA остается покупателю, пол здесь выложен кафелем. В комнате 12,5 кв м напольное покрытие – паркетная доска.   В прихожей большая гардеробная, которая так же остается новому владельцу. Вся квартира в приличном состоянии. Наше предложение идеально подойдет небольшой семье с детьми. Документы готовы, один собственник. ПРЯМАЯ ПРОДАЖА - АЛЬТЕРНАТИВНАЯ ПОКУПКА  НЕ ТРЕБУЕТСЯ. Если нужна помощь в ипотечном кредитовании, поможем подобрать  персональную программу. Записывайтесь на просмотр!
Цена
14 900 000 ₽

2-х комнатная квартира

Ломоносов г., Победы ул. м.Беговая


49.5 м2
Общая
30.7 м2
Жилая
6.4 м2
Кухня
СПб, Ломоносов, ул. Победы д.20, к.1 В продаже двусторонняя 2к.кв. 49,5 кв.м. в центре Ломоносова. Комнаты изолированные 17,1+13,6 кв.м. Кухня 6.4 кв.м. Стеклопакеты. Балкон во двор. Санузел раздельный. Состояние квартиры нормальное. Рядом вся необходимая для комфортной жизни инфраструктура! Встречная покупка. Звоните!
Цена
5 650 000 ₽

2-х комнатная квартира

Зеленогорск г., Ленина пр. м.Беговая


56.3 м2
Общая
34.8 м2
Жилая
5.7 м2
Кухня
Предлагаем вам уникальную 2-х комнатную квартиру в сталинском доме 1956 года постройки, в самом живописном городе - Зеленогорске. Высокие потолки (3 метра+), большие окна выходящие на проспект и двор. Из окон открывается потрясающие виды, зелень деревьев, а вечером закат над крышами. Толстые стены, сохраняющие тишину и прохладу в летнюю жару. Квартира без ремонта  это не недостаток, а преимущество, для тех кто покупает не стены, а образ жизни. Вы создайте дизайн с нуля под свой вкус и бюджет, не переплачивая за чужой устаревший ремонт.Наша квартира это больше чем локация. Вы получаете все это в окружении природы курортного города.Развитая инфраструктура: детские сады, школы, поликлиники, супермаркеты, кафе и аптеки. Все это в шаговой доступности. Всего в 10 минутах пешком песчаный пляж Финского залива и Парк культуры-ваша зона отдыха. Создайте уютное гнездышко в лучше месте и живите на курорте круглый год. Приезжаете и оценить не только в метры, но и магию места!
Цена
17 400 000 ₽

2-х комнатная квартира

Всеволожск г., Первомайский пер. м.Улица Дыбенко


59.3 м2
Общая
30 м2
Жилая
 —
Кухня
Пpодаeтcя просторная  двухкомнатная кваpтирa . Дoм  2002 года постройки  Квартиpа paспoложенa нa первом этaже пятиэтажнoгo здания, большая  кухня, изолированные комнаты, требуется косметический ремонт , учтено в цене  . Вo двoрe ecть дeтскaя и спoртивная площадки. В квартире раздельный санузел, что добавляет удобства в повседневной жизни., инфраструктура: в шаговой доступности продуктовые магазины, ПВЗ, аптеки, пекарни, школы, детские сады, автобусные остановки и железнодорожная станция (всего 30 минут до центра Санкт-Петербурга)
Цена
6 700 000 ₽

Закажите консультацию специалиста

Оставьте заявку
Нажимая на кнопку «Отправить заявку», Вы даете согласие на обработку своих персональных данных.
×
продажа
Что вы хотите продать?
Сколько комнат?
Тип объекта?
В каком регионе?
В каком районе Санкт-Петербурга
В каком районе Ленинградской области?

Оставьте Ваш контакт и наши специалисты свяжутся с Вами в самые кротчайшие сроки.

+7
×
новостройка
Какие районы Санкт-Петербурга Вас интересуют?
С какой целью Вы планируете приобрести квартиру?
Сколько комнат должно быть в Вашей будущей квартире?
Какой вариант отделки Вам необходим?
Когда Вы хотите заехать?
В какой бюджет хотите уложиться?

Оставьте Ваш контакт и получите подборку квартир без риска столкнуться с мошенничеством и недостроем.

+7
×
сдать
Что вы хотите сдать?
Скольки комнатная квартира?
Какой тип коммерческой недвижимости вы хотите сдать?
В каком регионе?
В каком районе Санкт-Петербурга
В каком районе Ленинградской области?

Оставьте Ваш контакт и наши специалисты свяжутся с Вами в самые кротчайшие сроки.

+7
Этот сайт использует файлы cookie для улучшения пользовательского опыта. Cookie - это небольшие текстовые файлы, которые сохраняются на вашем устройстве и помогают нам запоминать ваши предпочтения, анализировать посещаемость сайта и предоставлять более персонализированный контент. Использование файлов cookie позволяет нам сделать сайт удобнее для вас. Политика конфиденциальности
Принять Отказаться