Продажа квартир и комнат

Комнаты
Например: Массальского, 4
Ванные
2-х комнатная квартира

Мурино г., Ручьевский просп. м.Девяткино


47.62 м2
Общая
22.92 м2
Жилая
11.62 м2
Кухня
Цена
8 880 000 ₽
Ленинградская область, Всеволожский р-н, метро Девяткино, Мурино г., Ручьевский просп., 20 Продается просторная 2- комнатная квартира в ЖК Полис Лаврики. Жилой комплекс спроектирован в модном стиле скандинавского минимализма и отличается сдержанными цветовыми решениями. Высота потолков  2,7 метра. Жилой квартал объединяет 6 домов, детский сад и школу. Корпуса образуют дворы закрытой формы с оборудованным пространством для спорта и отдыха. Во дворах расположены игровые площадки для детей разных возрастов, площадки для воркаута и для командных игр, также предусмотрено место для игры в настольный теннис. На первом этаже разместились коммерческие помещения. Для владельцев автомобилей предусмотрен многоуровневый паркинг. Жилой квартал находится в западной части Мурино, современном благоустроенном пригороде Петербурга, в живописном месте, неподалеку от реки Охта. Ближайшая станция метро — Девяткино, железнодорожная станция — Лаврики. Удачная локация позволяет быстро добраться до исторического центра города, и в наиболее популярные места загородного отдыха — Охта-парк, Северный склон, Зубровник, озеро Хепоярви и Кавголовское озеро. Ждем Вас на просмотр!

2-х комнатная квартира

Мурино г., Екатерининская ул. м.Девяткино


50.23 м2
Общая
23.6 м2
Жилая
12.8 м2
Кухня
Цена
12 100 000 ₽
Ленинградская область, Всеволожский р-н, метро Девяткино, Мурино г., Екатерининская ул., 16 к.5 Продам большую 2- комнатную квартиру с лоджией в ЖК Графика. Фасад выполнен в черно-белой гамме, вход в подъезд спроектирован на уровне земли. В корпусе выполнена дизайнерская отделка входных групп, предусмотрены кладовые и колясочные помещения. Высота потолков 2.73 метра. В ЖК на крыше коммерческих помещений спроектирована зона отдыха с площадкой для йоги, установлены скамейки, шезлонги и беседки. По всей территории комплекса ведется видеонаблюдение. Дворы обустроены по концепции «двор без машин». На придомовой территории проведено озеленение, посажен яблоневый сад, спроектированы современные игровые и спортивные площадки. Для автовладельцев оборудован подземный паркинг. ЖК находится г. Мурино, во Всеволожском районе. Внешняя инфраструктура развита: школы, детские сады, бассейн, футбольная школа, магазины, супермаркет «Лента», Сбербанк. До ТРК «Мега Парнас» и IKEA, 10 минут транспортом. В 15 минутах пешком находится метро «Девяткино». Ждем Вас на просмотр!

2-х комнатная квартира

Отрадное г., Советская ул. м.Рыбацкое


48.5 м2
Общая
29.19 м2
Жилая
6.8 м2
Кухня
Цена
3 950 000 ₽
Ленинградская область, Кировский район, г. Отрадное Квартира с удачной планировкой и прекрасным расположением Мы рады представить вам двухкомнатную квартиру, расположенную в самом сердце города Отрадное. Она находится на пятом этаже пятиэтажного дома 1977 года постройки, в непосредственной близости от Пеллинского соснового парка и всего в 10 минутах от набережной реки Нева. Квартира без ремонта. Общая площадь квартиры составляет 48,5 кв. м, она состоит из двух раздельных комнат площадью 16,99+12,2 кв. м, а также отдельного санузла. Большой балкон, соединяет обе комнаты и имеет два выхода. Кухня 6,8 кв.м. имеет правильную квадратную форму и оборудована газовой плитой. Окна квартиры выходят во двор, на юго-запад, что обеспечивает ей обилие естественного света и солнечного тепла в любое время года. Вся необходимая инфраструктура находится в пешей доступности. Остановка общественного транспорта расположена всего в 7 минутах ходьбы, а до метро Рыбацкое можно добраться на маршрутке или автобусе за 30-40 минут или на электричке за 20 минут. У квартиры три взрослых собственника, она свободна от долгов и обременений. Подходит для всех видов расчетов, а мы с радостью окажем помощь в одобрении ипотеки через личный кабинет агента на самых выгодных условиях. Не упустите возможность стать хозяином этой чудесной квартиры! Звоните и записывайтесь на просмотр, мы будем ждать вас с нетерпением!

Затрудняетесь с выбором?

Не тратьте время на поиск и анализ множества предложений недвижимости
Мы сделаем это за вас профессионально, быстро, предложив оптимальные варианты по выгодной цене!

2-х комнатная квартира

Лодейнопольская ул. м.Чкаловская


53.84 м2
Общая
24.6 м2
Жилая
13.1 м2
Кухня
Цена
49 300 000 ₽
Санкт-Петербург, Петроградский р-н, метро Чкаловская, Лодейнопольская ул., 7 Продается большая 2- комнатная квартира в ЖК Tesoro by Akvilon. Фасад выполнен в стиле «Северного модерна» с эркерами. Первые три этажа облицованы натуральным камнем. В темное время суток предусмотрена художественная подсветка фасадов. В местах общего пользования выполнена дизайнерская чистовая отделка. Жилой комплекс оснащен современным инженерным оборудованием по системе «Умный дом» и системой InHOME. Она позволяет дистанционно регулировать освещение, климат, контролировать работу бытовой техники, инженерных сетей, оплачивать коммунальные услуги и позволяет управлять безопасностью в квартире со смартфона. В состав комплекса входит детский клуб «Аквилон Kids». На закрытой охраняемой придомовой территории спроектирована всепогодная детская площадка. В каждой парадной есть колясочные и сити-боксы для хранения вещей. Почтовые ящики работают по системе ESMART, они открываются с телефона или картой доступа. Жилой комплекс расположен на Петроградской стороне, в районе с развитой инфраструктурой и сетью общественного транспорта. В шаговой доступности находятся детские сады, школы, гимназии, фитнес-клубы, супермаркеты, достопримечательности и сады. До метро «Чкаловская» 5 минут пешком. Ждем Вас на просмотр!

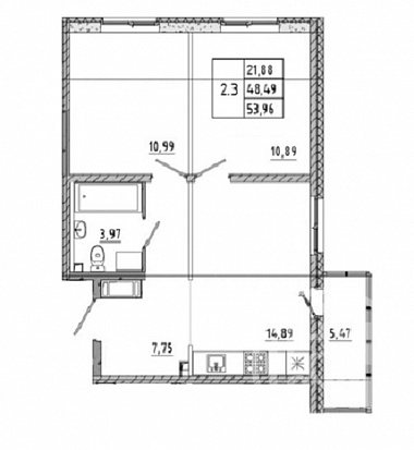
2-х комнатная квартира

Бугры пос., Тихая ул. м.Девяткино


50.13 м2
Общая
21.88 м2
Жилая
14.89 м2
Кухня
Цена
9 100 000 ₽
Ленинградская область, Всеволожский р-н, метро Девяткино, Бугры пос., Тихая ул., 9 к.3 Продается просторная 2- комнатная квартира с большой кухней- гостинной и с лоджией в ЖК Новые горизонты. Дом выполнен  в лаконичном стиле, фасады украшены витражным остеклением. Индивидуальный стиль и дизайн мест общего пользования,  импортных лифты. Объект включает в себя 3 детских сада и школу на 1375 мест и коммерческие помещения на первых этажах. Придомовая территория благоустроена пешеходными тротуарами, зелеными зонами и местами для отдыха. Расположение корпусов образует закрытые дворы, где установлены детские и спортивные площадки и уличные тренажеры. На территории ЖК работает служба консьержей и охраны. ЖК расположен во Всеволожском районе. В пешей доступности работают продуктовые магазины, отделения почты и банков. В пяти минутах транспортом находится «МЕГА Парнас», а также «OBI»,«IKEA» и «Ашан», в 15 минутах – курорт «Охта-парк». В радиусе пяти километров расположены метро «Парнас», «Проспект Просвещения», «Гражданский проспект» и «Девяткино». Выезд на КАД – в пяти минутах транспортом. Ждем Вас на просмотр!

2-х комнатная квартира

Дальневосточный просп. м.Проспект Большевиков


50.32 м2
Общая
28 м2
Жилая
10.88 м2
Кухня
Цена
19 000 000 ₽
Санкт-Петербург, Невский р-н, метро Проспект Большевиков, Дальневосточный просп., 19 к.1 Продается 2-х комнатная квартира с ремонтом в ЖК Pulse Premier В окружении находятся три парка: Строителей, Есенина и Боевого братства. Рядом с жилым комплексом есть все необходимое: множество магазинов и гипермаркетов, крупный торговый центр через дорогу, бассейн, фитнес-центры. Провести время с семьей, отправиться на шопинг или заняться спортом – любой досуг доступен жителям Pulse Premier. Внутри квартала построят школу и три детских сада. В соседних жилых комплексах уже работают детский сад и школа с двумя бассейнами. Уникальная система SetlHome избавит от забот и обеспечит высокую безопасность. Усовершенствованная система фильтрации воды, установленная в доме, очистит ее до состояния питьевой. Ждем Вас на просмотр!

2-х комнатная квартира

Черниговская ул. м.Московские ворота


62.1 м2
Общая
32.5 м2
Жилая
10.3 м2
Кухня
Цена
23 000 000 ₽
Санкт-Петербург, Фрунзенский р-н, метро Московские ворота, Черниговская ул., 17 Продается большая 2-комнатная квартира в ЖК Квартал Che. Проект сочетает в себе классический и современный стиль. Изюминка проекта - французские балконы с остеклением в пол. На первых этажах спроектированы коммерческие помещения, вход в которые организован со стороны, противоположной входам в парадные. Для автовладельцев предусмотрен наземный паркинг на 700 машиномест, а также два полуподземных ещё на 300 мест. В квартале закрытый охраняемый двор без машин. В комплексе есть два собственных детских сада. На территории установлены детские площадки, спортивные уголки, зоны отдыха с лавочками и зелёными насаждениями. Главная достопримечательность района, Триумфальные Московские ворота, находится в пяти минутах пешком. Район аэропорта активно застраивается бизнес-центрами. А дорога до самого аэропорта Пулково составит 25 минут транспортом. В четырех километрах от жилого комплекса расположен съезд на ЗСД, а в 10 км - КАД. В 10 минутах пешком расположена станция метро «Московские ворота». Ждем Вас на просмотр!

2-х комнатная квартира

Красносельское пос., Советская ул. м.Беговая


42.2 м2
Общая
27 м2
Жилая
6 м2
Кухня
Цена
3 200 000 ₽
В поселке Красносельское Выборгского района Ленинградской области продается 2-х комнатная квартира на 4 этаже 5-ти этажного жилого дома. Квартира уютная, чистая, светлая, т.к. окна выходят на восток и юг. Отопление, вода-центральное. ГВС-бойлер.  Санузел раздельный. Комнаты изолированные. В поселке удобная транспортная доступность ( маршрутка до ж\д станции Кирилловское и автобус до п. Рощино и г. Выборг). Вся инфраструктура в поселке есть: школа, д/сад, аптека, сетевые магазины. Рядом озеро Глубокое, с рыбалкой и пляжем. Вокруг поселка лес с грибами и ягодами. Квартиру можно использовать как для постоянного проживания, так и для сезонного проживания. В 30-ти минутах  транспортом горнолыжный курорт в п. Коробицыно. Прямая продажа, документы готовы.

2-х комнатная квартира

Кузьмоловский пос., Железнодорожная ул. м.Девяткино


42.2 м2
Общая
27 м2
Жилая
4.8 м2
Кухня
Цена
5 800 000 ₽
Вашему вниманию предлагается уютная квартира в развитом посёлке городского типа Кузьмолово. Квартира находится в отличном состоянии, недавно был проведён ремонт, заменены трубы. Комнаты просторные, правильной формы, что предоставляет больше возможностей для планировки и создания комфортных условий. Новым владельцам остаются кухонная мебель и большой встроенный шкаф в комнате. Пол в комнатах отделан ламинатом, в санузле — плиткой, в коридоре и на кухне — линолеумом. Санузел раздельный. Окна выходят на улицу, обеспечивая хорошее естественное освещение. Шум от дороги не проникает в жилое помещение. В большой комнате есть выход на застеклённый балкон. В посёлке ведётся активная работа по благоустройству, разбиваются скверы и дорожки. В непосредственной близости находятся все необходимые объекты для комфортной жизни: в самом доме есть магазин «Семишагофф», рядом расположены детские сады, школы (начальная и средняя), музыкальная школа, Дом культуры, стадион, поликлиники, магазины и кафе. В пяти минутах ходьбы расположена железнодорожная станция Кузьмолово, откуда можно добраться до станции метро «Девяткино» за 15 минут. Также есть остановки общественного транспорта, а на автомобиле до города можно доехать за 25 минут. Кроме того, в пешей доступности находится живописный карьер, где можно купаться. До озёр также легко добраться как на личном автомобиле, так и на общественном транспорте. Один взрослый собственник, обременений нет, прямая продажа. Просмотр по договорённости. Всего в 25 минутах от городской суеты вас ждёт ваш новый дом, готовый принять вас и создать атмосферу уюта и комфорта.

2-х комнатная квартира

Стрельна г., Красносельское шос. м.Проспект Ветеранов


50.7 м2
Общая
26.5 м2
Жилая
8 м2
Кухня
Цена
14 800 000 ₽
СПб, пос. Стрельна (Петродворцовый р-н СПб., Красносельское шоссе, д. 22, стр.1 Великолепная 2-х-комнатная квартира 50,7 кв.м. в малоэтажном элитном ЖК бизнес-клacca `Veren Village Стрельна` в одном из лучших пригородов СПб. В 3 минутах от КАД. Уютная, светлая, теплая квартира с высококачественным, современным, свежим ремонтом! Остается вся встроенная мебель. Комнаты 13,3 и 13 кв.м, кухня 8 кв.м. Удобная оборудованная кладовка-гардеробная. Панорамные окна с двухкамерными стеклопакетами выходят на две стороны: на юг - во двор, на запад - на приватный двор эксплуатируемой крыши (стилобат). В дизайнерской парадной предусмотрена колясочная, есть лифт со спуском в подземный паркинг. ЖК `Beрен Вилладж Стрeльна` расположен в благоустроенном,  экологически чистом, зеленом Петродворцовом районе города. Территория комплекса охраняемая и закрытая (двор без машин). Ведется круглосуточное видеонаблюдение. На территории ЖК расположены детские и спортивные площадки, прогулочная набережная с зонами отдыха вдоль ручья Стрелка и спортивный комплекс с бассейном. Отличная транспортная доступность. Рядом выезд на КАД и ЗСД. В пешей доступности трамвайная и автобусные остановки с транспортом до многих станций метро. Рядом магазины, рестораны, ТК `Лента`, медицинский, мебельный и строительный центры. Недалеко находится Константиновский дворец, Фонтаны Петергофа, парки и дворцы. 20 минут до берега Финского залива. Идеальное место для спокойного и комфортного проживания! Звоните!

2-х комнатная квартира

Стрельна г., Орловская ул. м.Автово


49 м2
Общая
27.7 м2
Жилая
8.9 м2
Кухня
Цена
7 050 000 ₽
СПБ, Петродворцовый р-н, пос. Стрельна, Орловская ул., 2 Здравствуйте, Вашему вниманию предлагается светлая, уютная, удобная 2к.квартира в выигрышной локации. Вид с балкона на Финский залив! -этаж 4/7 -есть лифт -48,9кв.м -изолированные комнаты (15 и 12,7кв.м) -кухня 8,9кв.м -раздельный санузел -наличие балкона -кирпичный дом 1985 года постройки В 200 метрах от дома есть продуктовые магазины и остановки общественного транспорта. До ж/д вокзала станции «Стрельна» 10 минут пешком. Легкая встречная продажа. 2 взрослых собственника. Принимаем все формы оплат, поможем с одобрением ипотеки. Звоните, приходите на просмотр!

2-х комнатная квартира

Ломоносов г., Михайловская ул. м.Автово


51.6 м2
Общая
28.7 м2
Жилая
8.1 м2
Кухня
Цена
6 350 000 ₽
Петродворцовый р-н, г. Ломоносов. Продаётся 2 ком.квартирав в кирпично-монолитном доме с удобной планировкой на 8 этаже,светлая, двусторонняя в ЖК `Ломоносов`, 3 корпус. санузел раздельный , комнаты изолированы 14,1+14,6 кв.м, кухня с выходом на лоджию, помещение под гардеробе.Квартира без отделки. Документы готовы к сделке, без обременений, один собственник. Прямая продажа.

Закажите консультацию специалиста

Оставьте заявку
Нажимая на кнопку «Отправить заявку», Вы даете согласие на обработку своих персональных данных.
×
продажа
Что вы хотите продать?
Сколько комнат?
Тип объекта?
В каком регионе?
В каком районе Санкт-Петербурга
В каком районе Ленинградской области?

Оставьте Ваш контакт и наши специалисты свяжутся с Вами в самые кротчайшие сроки.

+7
×
новостройка
Какие районы Санкт-Петербурга Вас интересуют?
С какой целью Вы планируете приобрести квартиру?
Сколько комнат должно быть в Вашей будущей квартире?
Какой вариант отделки Вам необходим?
Когда Вы хотите заехать?
В какой бюджет хотите уложиться?

Оставьте Ваш контакт и получите подборку квартир без риска столкнуться с мошенничеством и недостроем.

+7
×
сдать
Что вы хотите сдать?
Скольки комнатная квартира?
Какой тип коммерческой недвижимости вы хотите сдать?
В каком регионе?
В каком районе Санкт-Петербурга
В каком районе Ленинградской области?

Оставьте Ваш контакт и наши специалисты свяжутся с Вами в самые кротчайшие сроки.

+7
Этот сайт использует файлы cookie для улучшения пользовательского опыта. Cookie - это небольшие текстовые файлы, которые сохраняются на вашем устройстве и помогают нам запоминать ваши предпочтения, анализировать посещаемость сайта и предоставлять более персонализированный контент. Использование файлов cookie позволяет нам сделать сайт удобнее для вас. Политика конфиденциальности
Принять Отказаться