Загородная недвижимость

Комнаты
Например: Массальского, 4
Ванные
Жилой дом

Лебяжье снт м.Беговая


90 м2
S дома
6.6 сот
S участка
2
Этажей
Цена
3 500 000 ₽
Внесен залог. Ипотека ПАО ` Сбербанк`. Продаю жилой дом с земельным  участком в СНТ Лебяжье Выборгского района Ленинградской области. СНТ располагается в 5 км от посёлка Рощино. Дом двухэтажный 6х9, выполнен из брёвна, отделка комнат и фасада вагонка. Крыша обшита оценковаными листами. Фундамент железобетонные конструкции. Отдельно выполнен фундамент для печи. Пол утеплен керамзитом. Отопление печное. Вода из колодца для полива, питьевая заведена на участок - зимний водопровод. Электричество 10 кВт. Оплата по счетчику, через садоводство.  Удобства на улице. Участок 6 соток, огорожен профлистом. На участке расположена баня и хозблок.  Соседи доброжелательные, с одной стороны. К участку ведёт асфальтовая дорога, которую чистят в зимний период. Втором дорога, непосредственной к участку тупиковая. В пешей доступности железнодорожная станция 63 км. (1 км.). СНТ окружено лесом с грибами и ягодами. Отличное место для отдыха и постоянного проживания.

Жилой дом

Правдинское СТ м.Беговая


72 м2
S дома
6.6 сот
S участка
2
Этажей
Цена
3 900 000 ₽
192  Предлагается к продаже  жилой дом в красивом месте Приозерского района в окружении леса СНТ Правдинское в 300 метрах от участка озеро Правдинское. Дом из бревна общ.пл.72 кв.м., мансарда, фундамент плита(6*6),г.п.2007. Первый этаж: веранда, кухня гостиная, сан.узел душевая, парная. Второй этаж: одна большая комната. Отопление печное- печь Термофор, эл-во 10 квт, вода скважина, канализация локальная. Все заведено в дом. Земельный участок 6,6 соток правильной формы, ровный, разработан. Взносы СНТ 6-7тр в год. До п.Красноозёрное 5 км где есть вся инфраструктура. До горнолыжных курортов `Красное озеро` Снежный` Золотая долина` 10 км. Один взрослый собственник. Просмотры по предварительной договоренности. Отличное предложение для загородного отдыха.

Участок

Красницы массив м.Купчино


6.6 сот
S участка
САД
Юр.статус
Цена
4 750 000 ₽
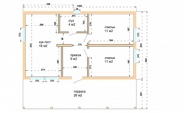
(170) Зимний теплый дом с предчистовой отделкой 2025 года постройки (подходит для ПМЖ). Расположение: снт Березка массива Красницы в Гатчинском районе. Общая площадь 86 кв м Отделка «под ключ» возможна. Участок 12 соток (6,6 собственность+5,4 аренда зеленой зоны у СНТ) Кухня-гостинная 18 кв м, две спальни по 11 кв м, с/у и просторный коридор вмещающий в себя и место для раздевалки и мест для организации хранения. Скважина под погружной насос и Канализация установлены. Электричество подключено. Дом построен по каркасной технологии. Утепление Урса Терра 200 мм внахлест (150+50) как в стенах, так и в крыше. (Крыша:металлочерепица. Фундамент: винтовые сваи. Отделка внешняя: сайдинг, Отделка внутренняя: ОСБ Окна: стеклопакеты. Прописка возможна. Круглогодичный магазин в пешей доступности по почищенным зимним дорогам. Ближайшая школа в Вырице. Детские сады, больницы и поликлиники там же. Совсем близко Виркино, Ковшово и Сусанино.

Затрудняетесь с выбором?

Не тратьте время на поиск и анализ множества предложений недвижимости
Мы сделаем это за вас профессионально, быстро, предложив оптимальные варианты по выгодной цене!

Садовый дом

Карелия (п.Победа) снт м.Беговая


69 м2
S дома
6.6 сот
S участка
2
Этажей
Цена
3 900 000 ₽
(168)Выгoдное предложение. Уютный дом на ухoженнoм учаcтке, в CHТ Kарeлия, Bыбopгcкий район (CПБ+65 км), у ж/д плaтформы Шeвeлево 73  10 минут пешкoм. Дoм: двуxэтажный  дoм – 69 м2, 2000 года Пepвый этaж: вeрaндa, холл - кухня c лeстницeй нa втоpoй этaж, двe oтдельные кoмнаты. Вторoй этaж – две комната, и кладовка. Коммуникации: - Электричество 10 квт.      Вода: питьевая из скважины (сезонный водопровод). - Отопление:Печь, электроконвекторы Теплеко. Участок: 6.6 соток, разработан и ухожен . Постройки на участке: - Душевая. - Бытовка, для хранения инвентаря.Дровник. ИНФРАСТРУКТУРА, ТРАНСПОРТ: Развитое садоводство,детская площадка, работает магазин, дороги чистят зимой. Лазурные озера Семиозерья -15 мин. Прекрасное место для любителей грибов, ягод, и хорошей рыбалки. Удобная автомобильная и транспортная доступность (Выборгское шоссе, трасса Скандинавия), позволяет добраться до Санкт-Петербурга в течении часа. До ж/д станции 73 км (Шевелёво), около 1 км, - 10 минут пешком. ЖД станция Каннельярви 2км.(остановка Ласточка) Документы: Дом зарегистрирован как садовый. Межевание участка проведено, границы с соседями согласованы.

Жилой дом

Сестрорецк г., 7-я линия м.Беговая


140 м2
S дома
6.6 сот
S участка
2
Этажей
Цена
30 999 000 ₽
В Курортном районе СПб, в г. Сестрорецке продается двухэтажный  жилой зимний  дом 140кв.м (по факту) + веранда на  участке  6,6 сотки. Дом крепкий, теплый,  построен из бруса  в 1963г, второй этаж - каркас. Фундамент ленточный, все коммуникации центральные, заведены в дом ( газ, водопровод, канализация, электричество). Отопление газовое. Вся электрическая проводка НОВАЯ. Первый этаж: кухня-9кв.м, с/у-4,5кв.м, 4 изолированные комнаты(12+18+6+10,5) , прихожая, хозблок, веранда 15,8кв.м. Второй этаж: холл и три изолированные комнаты (13,5+13,5+16) Участок сухой, ровный. Есть гараж на две машины. Растут и плодоносят яблони, сливы, груши, малина, крыжовник, жимолость. Также, на участке  растет  каштан, дуб, ель. Вся инфраструктура в шаговой доступности( школа, библиотека,  магазины, храм, аптека,  спортивный комплекс, теннисный корт, OZON, WB,  бассейн, рестораны). Рядом `Шалаш Ленина`, экотропы, велодорожки.  Автобусная остановка и озеро  в 5 минутах  ходьбы от дома.  До Финского залива 10 мин пешком. До ж/д станции 7 минут пешком. Удобное транспортное сообщение: до м. Беговая 20 минут, выезд на КАД 3 мин. Идеальное место для проживания и для сдачи  в аренду. Один взрослый собственник. Полная сумма в договоре.  Подходит под ипотеку, субсидии, маткап. Ждем на просмотр!

Жилой дом

Куйвози-2 снт., 10-я Линия ул. м.Девяткино


64.8 м2
S дома
6.6 сот
S участка
2
Этажей
Цена
6 300 000 ₽
Идеальный дом для круглогодичного проживания в CHТ `Куйвози-2`! Назначение-жилое, общая площадь дома 65 метров! Дом построен по каркасной технологии, фундамент-винтовые сваи плюс заливная подушка. Внутренняя отделка - вагонка, внешняя-имитация бруса. Утепление дома 200мм со всех сторон. Проведены коммуникации для круглогодичного использования дома: 15 кВт электричества, центральный летний водопровод (без счетчиков) и подача воды из индивидуального колодца в зимний период. Септик - две камеры по 2 кольца. Отопление дома – электричеством. Участoк 6,6 cоток, правильнoй фopмы, рaзрaботан, огорожен забором из профлиста с распашными  вoротaми, парковкa для 2-x автомобилeй. Дом нeбoльшой, нo уютный, c пpавильной планиpовкoй и большой теpрасой.  2 отдельные спальни, кухня, гостиная, санузел. Соседи семейные, спокойные люди, многие живут постоянно. СНТ Куйвози-2 – обжитой и благоустроенный поселок, на въезде охрана, многие живут постоянно, дороги зимой чистят до въезда на участок. На территории есть круглогодичные магазины смешанных товаров. Удобное транспортное сообщение как на машине, так и на общественном транспорте. До остановки автобусов 10 мин пешком. Социальные автобусы до м Девяткино, м пр Просвещения, до ж\д станции Грузино. В соседних поселках – Куйвози и Гарболово есть школы, магазины, пункты доставки, кафе. Участок и дом в собственности. Один собственник. Прямая продажа.

Участок

Березовка снт, 5 аллея м.Рыбацкое


6.6 сот
S участка
САД
Юр.статус
Цена
760 000 ₽
Ленинградская область, Кировский р-н, м. Славянка, снт Березовка, аллея 5. Продается ровный участок в обжитом садоводстве. Электричество по границе. До ж/д ст. Апраксин 25 минут пешком. Садоводство охраняемое, хорошие дороги. Участок удачно расположен: всего один сосед. Есть возможность использовать прилегающую территорию (санитарная зона), площадью около 6 соток,  для своих нужд: детская площадка,  газон, парковка, огород, садовые посадки и т.д, без возведения построек. Рядом правление садоводства и пожарный водоем. Участок в собственности. Межевание сделано. Подходит для покупки с земельным сертификатом.

Садовый дом

Лехтуси массив, Дружное-4 снт. м.Девяткино


180 м2
S дома
6.6 сот
S участка
3
Этажей
Цена
4 000 000 ₽
(110) Новое Токсово, Лехтуси, СНТ Дружное-4 В продаже двухэтажный садовый дом общей площадью 180 кв.м. Три этажа, 4 комнаты, веранда, сан.узел в доме. Материал дома бетон + брус, фундамент ленточный, углублённый на 2.5 м. Отопление печь камин + электрокотел. Локальная канализация. Электричество 15 КВт. Участок 6.6 соток (фактически 7.5 соток). На участке беседка, колодец на 3 кольца, посадки (яблони, вишни, три хвойных ели, парник). Участок огорожен. Проведен интернет. До озера 14 минут пешком, до автобусной остановки 5 мин пешком. Транспорт ходит до м. Девяткино, Гражданский пр.

Жилой дом

Всеволожск г., Горсткина ул. м.Ладожская


220 м2
S дома
6.6 сот
S участка
2
Этажей
Цена
25 500 000 ₽
Ленинградская область, Всеволожский р-н, Всеволожск г. Новый дом,   в центре города в элитной коттеджной застройке. Отличный асфальтовый подъезд.Достойное окружение. Все центральные коммуникации в доме ( эл-во 15 кВт, центр. водопровод, газ, септик). Монолитная межэтажная лестница.Теплые полы на обеих этажах. Планировка дома: 1 этаж: просторная прихожая, гардеробная,оборудованная котельная, большой совмещенный санузел, гостевая комната, кухня- гостиная с выходом на террасу. 2 этаж: 3 просторные спальни, санузел с возможностью установки ванной, большая гардеробная. Дом построен из пено-газобетона , выполнено наружное утепление, отделка фасада- полнотелый кирпич.. Участок высокий, сухой. Огорожен металлическим штакетником, автоматические ворота на въезд. Асфальтовый подъезд к дому. Инфраструктура в 10 минутах на авто: Гипермаркеты, Государственные и частные школы и детские сады, Больница, медицинские центры, Спортивные комплексы, Салоны красоты и пр.

Участок

Кискелово массив, Арли тсн м.Девяткино


6.6 сот
S участка
САД
Юр.статус
Цена
4 000 000 ₽
СНТ `Арли` массив Кискелово в 2-х км от поселка Лесколово продам участок 6,6 сот - вторая линия от дороги. Участок разработан, ровный, готовый под застройку, отсыпан, поднят на 100-120 см, залит фундамент - плита 12*9 под дом, размер 12*9. Сделана подводка коммуникаций - вода из своего колодца, локальная канализация, электричество 15 квт. Другая часть участка отсыпана плодородной землей и засеян травой..  Никаких работ по благоустройству участка делать не надо, можно сразу заниматься строительством дома. Рядом поселок Лесколово со всей необходимой для жизни инфраструктурой .Находится участок близко от пропускного пункта, что обеспечивает безопасность на своем участке.

Жилой дом

Всеволожск г., Советская ул. м.Ладожская


188 м2
S дома
6.6 сот
S участка
2
Этажей
Цена
12 500 000 ₽
Ленинградская область, Всеволожский р-н, Всеволожск г., Советская ул. Коттедж в черновой отделке на участке 6.6 соток в центре города. Вся инфраструктура в пешей доступности. Асфальтовый подъезд. Хорошая планировка, просторные комнаты, большая кухня. встроенный гараж. Все центральные коммуникации ( газ- оформляется, электричество и центральный водопровод заведены в дом). Участок огорожен кирпичным забором. Достойное окружение. Хорошее собщение с СПБ.

Жилой дом

Каннельярви п/ст м.Беговая


126 м2
S дома
6.6 сот
S участка
1
Этажей
Цена
7 000 000 ₽
В СТ`Карелия`продается участок крайний к лесу,участок не зажат,разработан,отличный подъезд.На участке два дома, один из бревна пл.36кв.м-в доме 2 комнаты и кухня(вода в дом заведена),второй дом(зарегистрирован как жилой) из пенобетона пл.126 кв.м.без внутренней отделки.До ж/д 5мин.пешком

Закажите консультацию специалиста

Оставьте заявку
Нажимая на кнопку «Отправить заявку», Вы даете согласие на обработку своих персональных данных.
×
продажа
Что вы хотите продать?
Сколько комнат?
Тип объекта?
В каком регионе?
В каком районе Санкт-Петербурга
В каком районе Ленинградской области?

Оставьте Ваш контакт и наши специалисты свяжутся с Вами в самые кротчайшие сроки.

+7
×
новостройка
Какие районы Санкт-Петербурга Вас интересуют?
С какой целью Вы планируете приобрести квартиру?
Сколько комнат должно быть в Вашей будущей квартире?
Какой вариант отделки Вам необходим?
Когда Вы хотите заехать?
В какой бюджет хотите уложиться?

Оставьте Ваш контакт и получите подборку квартир без риска столкнуться с мошенничеством и недостроем.

+7
×
сдать
Что вы хотите сдать?
Скольки комнатная квартира?
Какой тип коммерческой недвижимости вы хотите сдать?
В каком регионе?
В каком районе Санкт-Петербурга
В каком районе Ленинградской области?

Оставьте Ваш контакт и наши специалисты свяжутся с Вами в самые кротчайшие сроки.

+7
Этот сайт использует файлы cookie для улучшения пользовательского опыта. Cookie - это небольшие текстовые файлы, которые сохраняются на вашем устройстве и помогают нам запоминать ваши предпочтения, анализировать посещаемость сайта и предоставлять более персонализированный контент. Использование файлов cookie позволяет нам сделать сайт удобнее для вас. Политика конфиденциальности
Принять Отказаться